Thermal properties of the basement floor in wooden houses made from MHM-panels
- Authors: Kornilov T.A.1, Doktorov I.A.1
-
Affiliations:
- M.K. Ammosov North-Eastern Federal University
- Issue: No 1 (2024)
- Pages: 34-46
- Section: Constructions
- URL: https://bakhtiniada.ru/2542-114X/article/view/296265
- DOI: https://doi.org/10.25686/2542-114X.2024.1.34
- EDN: https://elibrary.ru/EPLUVL
- ID: 296265
Cite item
Full Text
Abstract
Introduction. The territory of the Republic of Sakha (Yakutia) is characterised by extreme climatic conditions with outdoor temperatures below -40 °C lasingg 50-60 days and the presence of permafrost soils. In these conditions, a multilayer wall structure with thermal insulation constructed from mineral wool slabs and a vented facade are used to provide thermal protection for buildings with load-bearing walls built from MHM-panels. The surface of the enclosing buildings is typically the only factor taken into consideration by thermal engineers when making design decisions for exterior walls, basements, attics, and floor-to-floor ceilings in projects. However, the practice of building operation shows that the greatest heat losses occur through the junctions of the basement floor with the outer and inner walls, as well as through the corner joints of the outer walls.
The aim of the research is to evaluate the thermal engineering properties of typical structural solutions for the junction of external and internal walls to the basement floor in the standard projects of houses with load-bearing walls made from MHM-panels.
Materials and methods. In order to achieve this goal, an analysis of typical structural solutions of nodal joints used in real projects of buildings with load-bearing walls made of MHM-panels was carried out by conducting thermal engineering calculations of 3D models of structural elements using the certified HEAT 3D software package and comparing with the results of a full-scale thermal imaging survey of existing buildings made of MHM-panels.
Research results. The thermal analysis showed that the greatest number of violations of thermal protection in real operating conditions at an outdoor temperature of 45 °C and below is observed in house basements. Significant heat losses through the enclosing structures of low-rise buildings made of MHM-panels are observed at the junctions of the basement floor with external and internal walls, as well as at the sites of angular joints of external walls. Calculations have shown that the temperature on the inner surface of the enclosing structures in the corner sections of the interface of the outer walls with the basement floor is significantly lower than the dew point temperature.
Conclusion. Conventional methods for connecting nodes in basement floors of buildings with load-bearing walls made from MHM panels do not account for temperature variations. As a result, energy-efficient node solutions must be developed and updated in order to be used in the harsh climate of northern Russia.
Full Text
Введение
В последние десятилетия идет постоянный поиск новых технологий и решений в деревянном домостроении: совершенствуются материалы и технологии строительства, оптимизируются технические решения различных конструктивных узлов деревянных домов [1-3]. В условиях Севера и Арктической зоны РФ одним из главных критериев при поиске оптимальных конструктивных решений в деревянном домостроении является обеспечение тепловой защиты зданий. Построенные даже по самым современным технологиям деревянные дома не всегда отвечают требованиям энергосбережения в этих суровых условиях.
Технология строительства малоэтажных зданий с несущими стенами из МХМ-панелей на российском рынке деревянного домостроения появилась относительно недавно. В настоящее время исследований различных аспектов проектирования и эксплуатации стеновых конструкций из МХМ-панелей проведено недостаточно, что сдерживает широкое внедрение данной технологии в практику строительства малоэтажных домов. Существующие на сегодня работы носят в основном обзорный характер и посвящены вопросам оценки экологических свойств, а также характеристик огнестойкости и пожароопасности стеновых конструкций из МХМ-панелей по сравнению с другими строительными материалами и технологиями.
Результаты исследования подтверж-дают, что благодаря многослойной структуре массивные деревянные панели МХМ в плане противопожарной безопасности имеют ряд преимуществ перед каркасно-панельной и другими аналогичными технологиями. Так, например, данные J. Mohr [4] подтверждают безопасность такой конструкции при одностороннем воздействии огня, что соответствует воспламенению внутри или снаружи эксплуатируемого помещения. В статье [5] приведена сравнительная оценка экологичности конструкций из кирпича и МХМ-панелей по результатам исследования, авторы которого утверждают, что по всем показателям воздействия на окружающую среду и токсичности для человека стены из MХM-панели показали более низкие выбросы в воздух по сравнению со стенами из кирпича.
С конца 2000-х годов в Республике Саха (Якутия) накапливается определенный опыт применения МХМ-панелей в деревянном домостроении. Единственный производитель таких панелей в Якутии – ООО ЛПК «АЛМАС», которое выпускает их более пятнадцати лет, ведет поиск наиболее оптимальных конструктивных решений домов из МХМ-панелей, тесно работая с проектными организациями. За последние годы реализован и готов к реализации ряд проектов домов из МХМ-панелей, в том числе для строительства в северных и арктических районах Якутии. При проектировании и сборке стеновых МХМ-панелей в ООО «АЛМАС» в 2018 году впервые разработаны ТУ 16.23.20-001-25158601-2018 [6].
На базе Северо-Восточного федерального университета в разное время проводились единичные исследования фрагментов МХМ-панелей, выпускаемых ООО ЛПСК «АЛМАС», для оценки их теплотехнических свойств и прочностных характеристик.
Для сравнения расчетных и экспериментальных значений приведенного сопротивления теплопередаче стеновых конструкций из МХМ-панелей были проведе-ны испытания фрагментов стен из МХМ-панелей в экспериментальной климатической камере. Теплотехнические характеристики стеновых ограждений на основе МХМ-панелей толщиной 220 мм с утеплением из минераловатных плит различной толщиной теплоизолирующего слоя определялись с учетом реальных условий эксплуатации в условиях г. Якутска [7].
Исследования показали возможность применения МХМ-панелей в ограждающих конструкциях малоэтажных зданий в климатических условиях Севера при использовании эффективных утеплителей из минераловатных плит толщиной не менее 100 мм. Результаты исследований фраг-мента МХМ-панели на прочность и деформатичность выявили соответствие их прочностных характеристик требованиям технических условий [6]. По результатам испытаний коэффициент безопасности (запаса прочности) Кб составил 3,6 при нормируемом значении не менее 1,87 [8].
В зданиях с несущими стенами из МХМ-панелей, строящихся на территории Республики Саха (Якутия), для обеспечения тепловой защиты используется многослойная конструкция стены с теплоизоляцией из минераловатных плит и вентилируемым фасадом. В типовом решении таких домов в качестве основных конструктивных элементов наружных стен в проектах приняты в большинстве случаев МХМ-панели толщиной 180 мм, что находится в пределах рекомендуемых значений в соответствии с [6]. В качестве утеплителя используются минераловатные плиты из каменного волокна толщиной 100, 150 или 200 мм.
Отсутствие нормативных документов по проектированию зданий с несущими стенами из МХМ-панелей сдерживает широкое их применение в строительстве малоэтажных зданий. Это, в свою очередь, требует комплексного исследования характеристик и свойств материалов, методов проектирования и разработки энергоэффективных узловых решений с дальнейшей актуализацией их для применения в климатических условиях Севера России.
Целью данной работы является оценка теплотехнических свойств типовых конструктивных решений узлов примыкания наружных и внутренних стен из МХМ-панелей к цокольному перекрытию.
Для достижения заданной цели осуществлен анализ типовых конструктивных решений узловых соединений, примененных в реальных проектах зданий с несущими стенами из МХМ-панелей, с помощью проведения теплотехнических расчетов 3D-моделей элементов конструкций и сравнения с результатами натурного тепловизионного обследования существующих зданий из МХМ-панелей.
Материалы и методы исследования
За последние годы реализован и готов к реализации ряд проектов домов из МХМ-панелей, в том числе для строительства в северных и арктических районах Якутии. В таблице 1 приведены характеристики принятых конструктивных решений наружных стен в некоторых проектах зданий с несущими стенами из МХМ-панелей, предназначенных для строительства в населенных пунктах Якутии с различными климатическими условиями в соответствии с СП 131.13330.2020 [9].
Таблица 1. Принятые конструктивные решения наружных стен в проектах домов с несущими стенами из МХМ-панелей в Республике Саха (Якутия)
Table 1. The adopted design solutions for exterior walls in projects of houses with load-bearing walls made of MHM panels in the Republic of Sakha (Yakutia)
Наименование проекта | Населенный пункт | ГСОП, °С·сут | Состав наружной стены |
Типовой проект индивидуального жилого дома на 60 м2 | с. Бясь-юель | 10677 |
|
Типовой проект одноэтажного индивидуального жилого дома | г. Якутск | 10483 |
|
Проект 12-квартирного жилого дома | с. Батагай-Алыта | 12302 |
|
Проект 16-квартирного жилого дома | с. Хонуу | 12238 |
|
Проект 12-квартирного жилого дома | с. Саскылах | 12280 |
|
Для оценки реального состояния конструкций и микроклимата в жилых домах, построенных из МХМ-панелей по типовому проекту, в с. Бясь-Кюель Горного района Республики Саха (Якутия) в рамках программы восстановления жилья жителям, пострадавшим от природного пожара в 2021 году, были проведены тепловизионные обследования в зимний период эксплуатации в 2022 и 2023 годах.
В дни проведения тепловизионных обследований температура наружного воздуха составляла -45 °С в январе 2022 года, -52 °С в январе 2023 года.
Обследованию были подвергнуты восемь домов из МХМ-панелей, построенных по типовым проектам: проект двухэтажного дома площадью 140 м2 и проекты одноэтажных домов площадью 50, 60 и 100 м2. Во всех рассматриваемых проектах зданий приняты единые конструктивные решения по наружным и внутренним стенам, узлам их примыкания к перекрытиям.
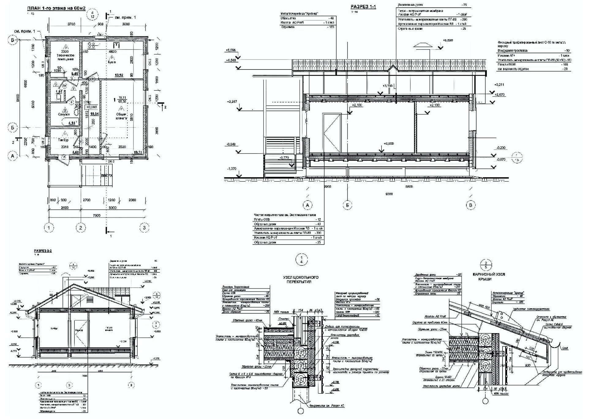
В качестве примера можно рассмотреть принятые конструктивные решения в проекте одноэтажного дома площадью 60 м2. Конструктивная схема здания – несущие продольные и поперечные стены из МХМ-панелей, жестко связанные обвязкой и балками покрытия. Фундаменты – стальные сваи диаметром 219 мм, устанавливаемые в предварительно пробуренные скважины. Окладные венцы – в три ряда из брусьев хвойных пород влажностью не более 20 %. Стены наружные – МХМ-панели толщиной 180 мм, утепленные минераловатными плитами ПП80 плотностью 80 кг/м3 по ГОСТ 9573-2021 толщиной 100 мм. Цокольное перекрытие – дощатый настил по балкам из бруса 180×180 мм. В цокольном перекрытии и покрытии теплоизоляция выполнена минераловатными плитами ПП80 плотностью 80 кг/м3 по ГОСТ 9573-2021 толщиной 300 мм (рис. 1).
Рис. 1. План и разрезы дома из МХМ-панелей на 60 м2
Fig. 1. Plan and sections of a house made of 60 m2 MHM panels
Результаты тепловизионных обследований домов
Проведенные обследования домов из МХМ-панелей в с. Бясь-Кюель показали, что температура внутреннего воздуха в домах не соответствует требованиям СанПиН 2.1.2.2645-10 [10], например, при температуре наружного воздуха -52 оС воздух внутри помещений зданий в среднем имел температуру +16,5 ºС.
По результатам анализа полученных термограмм можно заключить, что во всех домах наблюдается неравномерное распределение температуры на участках соединения стен с цокольным перекрытием и значительные потери тепла происходят через узлы сопряжения цокольного перекрытия с наружным и внутренним стенами, а также через угловые соединения наружных стен, расположенных взаимно перпендикулярно.
В большинстве домов температура на внутренней поверхности углового соединения наружной стены с цокольным перекрытием ниже, чем температура точки росы. В угловых участках пола некоторых домов установлена даже минусовая температура на внутренней поверхности.
Термограмма на поверхности стены внутри помещения кухни двухэтажного здания (рис. 2) показывает, что имеется неравномерное распределение температур на поверхности стены со значительным перепадом. При этом средняя температура на поверхности стены составляет 9,6 °С, что не соответствует требованиям действующих норм СП 50.13330.2012 [11] по перепаду температуры.
Рис. 2. Термограммы на внутренней поверхности ограждающих конструкций двухэтажного индивидуального жилого дома площадью 140 м2
Fig. 2. Thermograms on the inner surface of the enclosing structures of a two-storey individual residential building with an area of 140 m2
Минимальная температура на внутренней поверхности наружных стен -5,6 °С, что значительно ниже точки росы. Это в некоторой степени можно объяснить спецификой технологии изготовления МХМ-панелей, которые являются материалом, имеющим неоднородную структуру в разных направлениях. При этом низкое качество обработки и сушки пиломатериалов может привести к образованию щелей в местах их соединения по ширине.
На участках сопряжения наружных и внутренних стен с цокольным перекрытием двухэтажного дома (рис. 2) распределение температуры также неравномерное. Средние значения температур на этих участках отрицательные и изменяются в диапазоне от -5,1 до -13,2 °С, что значительно ниже температуры точки росы. В узлах угловых соединений наружных стен также наблюдается неравномерность распределения температуры на поверхностях, где минимальная температура на стыках достигает значений до -11,0 °С.
Термограммы в узле углового соединения наружных стен и цокольного перекрытия в одноэтажных зданиях (рис. 3) показывают, что значения средней температуры в данном узле составляют 2,5…3,1 °С, минимальная температура достигает до -2,4 °С. Значения минимальных температур на участке сопряжения наружных стен с цокольным перекрытием во всех обследованных одноэтажных зданиях находятся в диапазоне от 8,0 до 11,8 °С, что не представляет существенной разницы. Это говорит о том, что в узлах примыкания наружной стены с цокольным перекрытием в этих домах приняты одинаковые конструктивные решения и качество монтажа узла примерно одинаково.
Рис. 3. Термограммы на внутренней поверхности ограждающих конструкций одноэтажного индивидуального жилого дома площадью 60 м2
Fig. 3. Thermograms on the inner surface of the enclosing structures of a single-storey individual residential building with an area of 60 m2
В узлах угловых соединений стен с покрытием средняя температура на поверхностях составляет 18,1…21,9 °С, что соответствует требованиям [11]. Значительные теплопотери в рассматриваемых домах наблюдаются на участке сопряжения внутренней стены с цокольным перекрытием, где минимальная температура достигает -6,7...-6,9 °С.
Таким образом, наиболее проблемными участками, где имеют место значительные потери тепла через ограждающие конструкции при эксплуатации домов из МХМ-панелей, являются узлы сопряжения цокольного перекрытия с наружными и внутренними стенами, а также угловые соединения наружных стен. Температурный режим внутри помещений деревянных домов не отвечает нормативным требованиям, и минимальная температура на внутренней поверхности ограждающих конструкций ниже температуры точки росы. Наличие небольших дефектов в узловых соединениях конструкций при высокой инфильтрации воздуха в зимний период приводит к интенсивному проникновению холодного воздуха.
Результаты теплотехнического анализа конструкций
В домах с несущими стенами из МХМ-панелей применяют два типа конструктивных решений по устройству цокольного перекрытия: по деревянным балкам и панельное.
Первый вариант устройства цокольного перекрытия является традиционным и широко применяется в малоэтажном строительстве для различных вариантов объемно-планировочных и конструктивных решений домов. Один слой утеплителя укладывается между брусьями обвязки, дополнительный слой (слои) – между досками каркаса, связанными с шагом 590 мм для плотного прилегания. Сечение досок каркаса подбирается с учетом толщины утеплителя. В проектах часто принимают сечение балок из брусьев 180×180 мм.
Второй вариант устройства цоколя для домов из МХМ-панелей связан с использованием самих панелей в качестве перекрытия вместо деревянных балок. Утепление при этом осуществляется за счет укладки минераловатных теплоизоляционных плит в один или два слоя между деревянными балками меньшего размера (100×150 или 100×100 мм) с дополнительным утеплением по каркасу из досок сечением 40×150 мм.
Для анализа эффективности типовых конструктивных решений по устройству цокольного перекрытия домов с несущими стенами из МХМ-панелей были проведены теплотехнические расчеты 3D-моделей узлов соединений ограждающих конструкций с использованием сертифицированного программного комплекса HEAT 3D. Расчетные характеристики используемых материалов приняты по [11] для условий эксплуатации А с учетом низкой влажности воздуха в арктических районах и представлены в таблице 2.
Таблица 2. Характеристики материалов, используемых в типовых решениях наружной стены и цокольного перекрытия в домах с несущими стенами из МХМ-панелей
Table 2. Characteristics of materials used in standard solutions of the exterior wall and basement in houses with load-bearing walls made of MHM panels
Материал | Плотность, γ, кг/м3 | Расчетные характеристики | |
теплопроводность λ, Вт/(м·°С) | паропроницаемость μ, мг/(м·ч·Па) | ||
МХМ-панель | 500-600 | 0,13 | 0,03 |
Пиломатериалы из хвойных пород поперек волокон | 520-550 | 0,12 | 0,06 |
Плиты минераловатные из каменного | 40-60 | 0,04 | 0,32 |
80-125 | 0,04 | 0,35 | |
Ориентированные стружечные плиты (ОСП) | 600-700 | 0,13 | 0,004 |
Гипсоволокнистые плиты | 1250 | 0,34 | 0,075 |
Предварительные теплотехнические расчеты (табл. 3) показали, что при первом типовом решении (с балками перекрытия) наименьшая толщина теплоизоляционного слоя (слоев), отвечающая нормативным требованиям, получается равной 350 мм при Ro = 8,55 м2 ·°С/Вт, что отвечает нормативным требованиям для всех климатических районов Якутии, в том числе северных и арктических.
Таблица 3. Теплотехнические характеристики конструктивных решений цокольного перекрытия домов с несущими стенами из МХМ-панелей
Table 3. Thermal engineering characteristics of structural solutions for basement floors of houses with load-bearing walls made of MHM panels
№ | Толщина теплоизоляции d2, мм | Температура наиболее холодной пятидневки с обеспеченностью 0,92 | Min температура на внутренней поверхности, tmin, оС | Приведенное сопротивление теплопередачи Ro , м2·°С/Вт | Удельные потери теплоты Ψ, Вт/(м2·оС) | ||
Типовое решение 1 (с балками перекрытия) | |||||||
1 | 300 | -50 | 19,6 | 7,54 | 0,132 | ||
2 | -58 | 19,4 | |||||
3 | 350 | -50 | 19,6 | 8,55 | 0,117 | ||
4 | -58 | 19,5 | |||||
Типовое решение 2 (с панелью перекрытия) | |||||||
1 | 300 | -50 | 19,6 | 6,46 | 0,154 | ||
2 | -58 | 19,6 | |||||
3 | 350 | -50 | 19,7 | 7,76 | 0,129 | ||
4 | -58 | 19,6 | |||||
5 | 400 | -50 | 19,7 | 9,3 | 0,107 | ||
6 | -58 | 19,8 | |||||
В случае применения второго типа конструктивного решения с теплоизоляцией толщиной 350 мм можно обеспечивать сопротивление теплопередаче
Ro = 7,76 м2·°С/Вт, что является недостаточным для арктических районов Якутии, для которых в соответствии с СП 50.13330.2012 [11] Ro составляет не менее 8,49 м2·°С/Вт. Такое требуемое значение сопротивления теплопередаче можно обеспечить только при применении утеплителя толщиной не менее 400 мм. Второй из типовых вариантов конструкций цокольного перекрытия в реальных проектах применяется досточно редко. Это в первую очередь связано с удорожанием стоимости проекта по причине увеличения расхода пиломатериалов для производства массивных деревянных панелей. Кроме того, большая толщина слоя теплоизоляции (не менее 400 мм) увеличивает затраты на теплоизоляционные материалы.
В типовых конструктивных решениях цокольного перекрытия по глади внутренней поверхности расчетные значения минимальной температуры не ниже 19,2 °С, что обеспечивает разницу между температурой внутреннего воздуха и температурой на внутренней поверхности в пределах нормируемых значений не более 3 °С по СП 50.1333.2012 [11]. Однако результаты теплотехнических расчетов 3D-моделей угловых участков сопряжения стен и цокольного перекрытия типового решения показали, что температура на внутренней поверхности рассматриваемого участка не только не отвечает вышеуказанным требованиям, но и значительно ниже температуры точки росы.
Для анализа типовых решений цокольного перекрытия были проведены теплотехнические расчеты 3D-моделей узловых соединений рядовых участков сопряжения наружной и внутренней стен с цокольным перекрытием и углового участка сопряжения наружных стен с цокольным перекрытием (табл. 4).
Таблица 4. Результаты теплотехнического расчета цокольного перекрытия
Table 4. The results of the thermal calculation of the basement floor
Вид узлового соединения | Расчетная модель конструкции в ПК HEAD 3D | Температурные поля в разрезах узлов конструкций |
Рядовой участок сопряжения наружной стены и цокольного перекрытия | В вертикальном разрезе узла | |
Угловой участок сопряжения наружных стен и цокольного перекрытия | В горизонтальном разрезе на уровне пола | |
Рядовой участок сопряжения внутренней стены и цокольного перекрытия | В вертикальном разрезе узла |
В расчетной модели были приняты значения толщины теплоизоляционных слоев, наиболее часто используемые в типовых проектах деревянных домов из МХМ-панелей для строительства в северных и арктических районах: для стен – 150 мм, цокольного перекрытия – 350 мм.
Результаты расчетов показали, что на угловом участке сопряжения наружных стен и цокольного перекрытия минимальная температура на внутренней поверхности участка значительно ниже температуры точки росы и составляет tmin = +4,3 °С. В качестве основной причины возникновения такой ситуации можно рассматривать наличие теплопроводных элементов в виде деревянных балок из брусьев сечением 180×180 мм, которые опираются на свайные фундаменты, что значительно увеличивает тепловые потери через цокольное перекрытие.
Выводы
Анализ результатов проведенных тепловизионных обследований деревянных малоэтажных деревянных домов с несущими стенами из МХМ-панелей на свайных фундаментах на территории Якутии и теплотехнический анализ ограждающих конструкций позволил констатировать следующее:
- Наибольшее количество нарушений тепловой защиты в реальных условиях эксплуатации при температуре наружного воздуха -45 °С и ниже наблюдается в цокольной части домов. Самыми слабыми участками, где имеют место значительные потери тепла через ограждающие конструкции малоэтажных домов из МХМ-панелей, являются узлы сопряжения цокольного перекрытия с наружными и внутренними стенами, а также угловые соединения наружных стен, расположенных взаимно перпендикулярно. При этом тепловизионные обследования показали, что в ряде обследованных домов минимальные значения температуры на внутренней поверхности наблюдаются на участках сопряжения внутренней стены с цокольным перекрытием и достигают до -6,7...-6,9 °С, что может быть связано как с недостаточной проработкой конструкции данного узла, так и некачественным исполнением строительно-монтажных работ. Наличие небольших дефектов в узловых соединениях конструкций при высокой инфильтрации воздуха в зимний период приводит к интенсивному проникновению холодного воздуха.
- Согласно результатам теплотехнических расчетов, типовые решения цокольного перекрытия с балками перекрытия и панелью перекрытия в целом при соответствующей толщине теплоизоляции отвечают требованиям действующих норм по температурному режиму для эксплуатации домов в климатических условиях северных и арктических районов. Вместе с тем теплотехнические расчеты 3D-моделей угловых участков сопряжения наружных стен с цокольным перекрытием подтверждают результаты тепловизионных обследований и показали, что температура на внутренней поверхности рассматриваемого участка значительно ниже температуры точки росы.
- Таким образом, в типовых решениях узлов сопряжения цокольного перекрытия зданий с несущими стенами из МХМ-панелей температурный режим не отвечает нормативным требованиям, что обусловливает необходимость разработки энергоэффективных узловых решений с дальнейшей актуализацией их для применения в экстремальных климатических условиях Севера России.
About the authors
Terentii A. Kornilov
M.K. Ammosov North-Eastern Federal University
Author for correspondence.
Email: kornt@mail.ru
Doctor of Engineering Sciences, Member of the Academy of Sciences of the Republic of Sakha (Yakutia), Professor of the Department of Design, Construction and Technology. Research interests – thermal protection of buildings in cold areas with extremely low air temperatures. Author of more than 120 publications.
Russian Federation, YakutskIvan A. Doktorov
M.K. Ammosov North-Eastern Federal University
Email: dial73@mail.ru
Candidate of Engineeing Sciences, Associate Professor of the Department of Design, Construction and Technology. Research interests – wood processing technology and wooden house construction in the North. Author of more than 60 publications.
Russian Federation, YakutskReferences
- Vojakin A. Multilayer panels made of wood – a wooden alternative to concrete. Delovoj zhurnal «Lesnaja industrija». Available from: https://www.forumhouse.ru/entries/13247/ [Accessed 28 October 2022]. (In Russ.).
- Leonovich O. K., Korob A. Ju. Promising directions in the construction of wooden low-rise buildings. Works of BGTU. Ser. 1: Forestry, nature management and processing of renewable resources. 2022;(1):188–198. (In Russ.).
- Jukova K. V., Marsakova E. V., Inzhutov I. S., Kotlov V. G., Zhadanov V. I. Comparative analysis of technologies of wooden construction. Proceedings of the All-Russian scientific and methodological conference "University complex as a regional center of education, science and culture". Orenburg; 2018:159-166.
- Mohr J. Brand und Schallschutz bei MHM-Elementen REI 90 und 78 dB Holzbauweise. Holzbau die neu Quadriga. 2012;(3):53.
- Silvia Santi, Francesca Pierobon, Giulia Corradini. Massive wood material for sustainable building design: the Massiv–Holz–Mauer wall system. Journal of Wood Science. 2016;62:416–428. doi: 10.1007/s10086-016-1570-7
- TU 16.23.20-001-25158601-2018. The panel is a massive wooden wall and wooden structures made of coniferous wood. OOO LPK “ALMAS”. Jakutsk; 2018. (In Russ.).
- Chahov D. K., Doktorov I. A., Lavrov M. F. Heat-protective properties of wooden wall panels "Massiv-Holz-Mauer" for the conditions of Yakutia. Industrial and Civil Engineering. 2012;(1):35-38. (In Russ.).
- Romanov P. G. et al. Tests of the fragment of the MHM panel. Universum: tehnicheskie nauki: jelektron. nauchn. zhurn. 2022;(12). Available from: https://7universum.com/ru/tech/archive/item/14730. (In Russ.).
- SP 131.13330.2020. SNiP 23-01-99* Construction climatology. (In Russ.).
- SanPiN 2.1.2.2645-10. Sanitary and epidemiological requirements for living conditions in residential buildings and premises. (In Russ.).
- SP 50.13330.2012. Thermal protection of buildings. Updated version of SNiP 23-02-2003 (with amendments No. 1 dated 12/14/2018 and amendments No. 2 dated 12/15/2021). (In Russ.).
Supplementary files














