Revealing the features of international secondary education systems and their influence on the architecture of buildings of educational organizations (on the example of India)
- Authors: Kuznetsova A.A.1
-
Affiliations:
- Samara State Technical University
- Issue: Vol 13, No 4 (2023)
- Pages: 145-155
- Section: ARCHITECTURE OF BUILDINGS AND STRUCTURES. CREATIVE CONCEPTS OF ARCHITECTURAL ACTIVITIES
- URL: https://bakhtiniada.ru/2542-0151/article/view/253376
- DOI: https://doi.org/10.17673/Vestnik.2023.04.19
- ID: 253376
Cite item
Full Text
Abstract
Secondary education is compulsory all over the world. The implementation of this educational level takes place in school buildings of various sizes and types. It seems appropriate to study the features of the educational systems of the largest countries and their impact on the architecture of the school building with the subsequent systematization of similar and distinctive features with the Russian typology of school buildings in order to find the best options for its transformation in response to changes in external influencing factors. The article discusses the features of the development of the education system in India with an emphasis on the middle level. The current regulatory documents are analyzed, the most typical examples of school buildings are given. The issue of the development of digital education in the country is highlighted.
Full Text
Система образования в различных странах зависит от многих факторов. В первую очередь это демографические, социально-экономические, этнические, исторические. В становлении архитектурной типологии объектов образования важную роль играют климатические факторы. Объекты образования в архитектуре – это сложные, зачастую многофункциональные здания и сооружения, которым необходима систематизация и классификация. В разных странах своя система образования, включающая в себя дошкольное, начальное, общее среднее образование, а также профессиональное и высшее. Особый интерес в аспекте анализа типологии представляют объекты начального/общего среднего образования (школы), так как они охватывают наибольшее число детей определенной страны. Систематизация объектов в основном опирается на следующие критерии: тип школы, вместимость, пешеходно-транспортная доступность, функциональная насыщенность, образовательная направленность. Особый интерес представляет выявление причин возникновения той или иной системы зданий, их изменяемость и трансформация под влиянием факторов, характерных для определенной страны. Для понимания этих процессов представляется целесообразным проанализировать существующие системы образования в крупнейших странах с целью выявления их сходства и различия с российской классификацией объектов образования (в частности зданий образовательных организаций, реализующих среднее образование). Школьные здания – это наиболее регламентируемый объект в российской архитектурно-строительной отрасли. В процессе проектирования необходимо учитывать санитарно-гигиенические, строительные, педагогические требования. Проектирование объекта образования осуществляется на основании существующей типологии, основанной в первую очередь на вместимости (мощности) объекта и его типе.
Подробный анализ системы образовательных объектов в крупнейших странах позволит выявить наиболее важные классификационные признаки, присущие и российской системе, а также понять в каком направлении можно трансформировать существующую классификацию с целью ее адаптации к изменяемости внешних факторов. В данной работе внимание будет уделено изучению особенностей индийской образовательной системы, анализу нормативных требований и современных примеров проектирования школьных зданий, выявлению направлений изменения типологии с целью дальнейшей корреляции полученных данных в отношении российской системы объектов образования. В исследовании будет использован метод структурного анализа, основанный на изучении общей системы образования, внешних факторов, оказывающих наибольшее влияние на ее становление, функциональной насыщенности и объемно-планировочных особенностей объектов индийских школьных зданий.
Индия – это крупнейшая страна Южной Азии с населением около 1,4 млрд человек. Индийская образовательная система, одна из крупнейших и сложных систем образования в мире, насчитывает более 1,5 млн школ и более 260 млн школьников. Индия разделена на 28 штатов и 7 так называемых «союзных территорий». В каждом штате страны есть собственный Департамент образования. С 1976 г. влияние отдельных штатов на образование регулируется национальной организацией (Национальным советом по исследованиям и обучению в области образования (NCERT), которая определяет национальную структуру учебной программы. Но каждый штат имеет значительную свободу в реализации системы образования [1].
Школы, дающие начальное образование, составляют 56,58 % от общего числа школ в Индии. Учащиеся в возрасте от 6 до 14 лет имеют право на бесплатное и обязательное образование в соответствии с Законом «О праве детей на бесплатное и обязательное образование» 2009 года (RTE). В Индии около 10 тыс. государственных школ, осуществляющих начальное образование. Но эти школы находятся в очень плохом состоянии, в некоторых из них отсутствуют даже элементарные удобства, такие как электричество и вода [2]. Уровень образования внутри страны очень разный. Так, среди взрослого населения до сих пор встречаются люди, не умеющие ни писать, ни читать. Власти Индии всеми силами стремятся поднять образовательный уровень граждан, поэтому каждый совершеннолетний работающий житель платит 3 % от своих доходов в пользу образовательной системы [2, 3].
В Индии один из самых высоких уровней расслоения общества и классового неравенства. Хотя с 1950-х гг. система каст официально отменена, однако ее тысячелетние традиции не так легко искоренить из сознания людей. Правительство Индии старается сделать образование доступным для всех слоев населения. Наряду с бесплатными школами, есть платные. Платные укомплектованы современным оборудованием: парты, компьютеры, интерактивные доски, бассейн, теннисный корт. В бесплатных школах обстановка и инвентарь гораздо скромнее, а во многих сельских школах занятия и вовсе проводятся на полу: ребята по-турецки сидят вокруг учителя [2].
Школьная система в Индии имеет четыре ступени: начальная младшая (от 6 до 10 лет), начальная средняя (11 и 12 лет), старшая средняя (от 13 до 15 лет) и высшая средняя (16 и 18 лет). Учащиеся должны изучать общую учебную программу до окончания средней школы. На уровне старшей средней школы возможна некоторая специализация (табл. 1).
Таблица 1. Школьная система в Индии [2]
Категория | Возрастная группа, лет | Уровни/классы |
Дошкольная | 3−5 | Детский сад |
Начальная младшая | 6−10 | 1-4/5 |
Начальная средняя | 11−12 | 5-7 |
Старшая средняя | 13−15 | 8-9 |
Высшая средняя | 16−18 | 10-12 |
Учащиеся по всей стране должны изучать три языка (английский, хинди и свой родной язык), за исключением регионов, где хинди является родным языком [2]. Как и в России, в Индии есть различные образовательные программы для школ. Их действие распространяется не только на содержание учебного материала, но и на архитектурную структуру объекта и его функциональную насыщенность. И это представляет определенный интерес, так как в российской практике различные педагогические методики реализуются в однотипной образовательной среде, за исключением единичных частных примеров школьных зданий. Необходимо подчеркнуть, что структура школьных зданий в России прошла определенный этап типового проектирования, в итоге сформировав достаточно насыщенную обязательную функциональную структуру образовательного объекта.
Деятельность большинства государственных школ в Индии регулирует Центральный совет среднего образования (CBSE). Школы, находящие под влиянием данной организации, изначально предназначались для детей государственных служащих, которых периодически переводят в разные регионы страны, и дети могут переходить из школы в школу в течение года. В этих школах один предмет (обществознание, состоящий из истории, географии и обществоведения) всегда преподается на хинди, а другие предметы − на английском.
Вторая структура, регулирующая среднее образование в Индии, − это индийский аттестат о среднем образовании (ICSE), эквивалент кембриджскому аттестату. Данная структура руководит большинством частных школ в Индии. В дополнение к вышесказанному, существует относительно небольшое количество школ, которые следуют иностранным учебным программам, например так называемый Senior Cambridge. Как правило, это очень дорогие школы-интернаты, куда некоторые индийцы, работающие за границей, отправляют своих детей. Обычно у них великолепная инфраструктура, низкое соотношение учеников и учителей и очень мало студентов [3].
В каждом штате существует три типа школ: государственные, частные и субсидированные (часть затрат на строительство инвестору компенсирует государство). Такая же система есть и в России. Достаточно сильное влияние руководство штатов на образовательную программу привело к тому, что в Индии появились «новаторские» штаты, внедряющие в систему инновационные решения и улучшающие инфраструктуру школ. Керала является одним из таких штатов [3, 4]. В школах данного региона впервые были введены уроки информатики на уровне средней школы, а на данный момент все предметы школьной программы преподаются с помощью информационных технологий. Таким образом, в структуре школьных зданий появляются классы информатики и дополнительное материально-техническое обеспечение. Инициативу штата подхватило правительство Индии, и на данный момент этот подход распространяется во многих школах.
Строительство школьных зданий в Индии, так же как и в России, ведется на основе нормативных документов, но они носят более рекомендательный характер, хотя существует несколько правил в отношении минимальных требований, установленных аффилированными органами и Национальным строительным кодексом. Также соблюдение определенных требований при строительстве школьного здания позволит в дальнейшем получить членство CBSE / ICSE [3] .
В соответствии с индийскими стандартами классная комната начального класса должна быть рассчитана на 20−25 учеников, а для всех старших возрастных классов − не более 40 учеников (максимум 45 учеников в ICSE). Минимальные требования к площади пола на одного учащегося в классе составляют 2 м2 в дошкольных учреждениях, 1,11 м2 в начальной школе и 1,26 м2 в старшей средней школе, в то время как CBSE предписывает минимум 1 м2 площади на одного учащегося в школе. Согласно индийским стандартам, 0,2 м2 площади на одного учащегося должны быть отведены под туалеты [3, 4]. В индийских рекомендациях не определяется расстояние от школьного объекта до селитебной территории (пешеходная доступность), тогда как в России она составляет 500 м при комплексном освоение территории. Критериями для выбора участка под строительство школьного здания являются: стоимость земли, наличие подъездных или пешеходных путей и территориальное позиционирование в сложившейся сельской или городской структуре. На основании действующего Устава CBSE школа, претендующая на присоединение, должна обладать следующей функциональной насыщенностью и объемно-планировочными параметрами:
- классная комната − минимальный размер должен быть 8 х 6 м. На каждый класс должно быть по одной комнате. Минимальная площадь помещения должна быть не менее 1 м2 на человека;
- научная лаборатория (объединенная для средней школы и/или раздельные по физике, химии и биологии для старшей средней школы) – минимальный размер должен быть 9 х 6 м каждая и должны быть полностью оборудованы;
- библиотека − минимальный размер должен быть 14 х 8 м, с читальным залом и другими ресурсами для удовлетворения потребностей учащихся в школе;
- компьютерная лаборатория − минимальный размер компьютерной лаборатории должен составлять 9 x 6 м;
- помещения для внеклассных занятий − либо отдельные помещения для занятий музыкой, танцами, искусством и спортом и т. д., либо один универсальный зал достаточного размера для всех этих занятий;
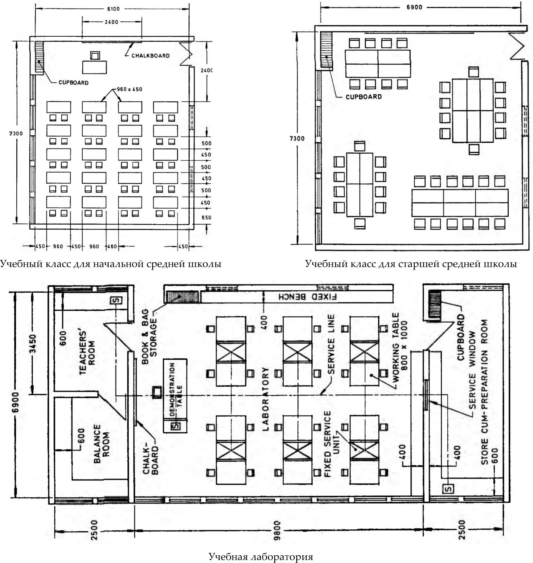
- лаборатория должна быть минимум одна, если численность учащихся в школе до 800 человек. На каждые дополнительные (до) 800 учеников необходима еще одна лаборатория (рис. 1).
Рис. 1. Примеры планировок учебных и специализированных помещений в индийских школах [2]
В индийской школе должен быть обеспечен питьевой режим и гигиеничные туалеты на каждом этаже с умывальниками для мальчиков и девочек отдельно. Туалеты для первоклассников должны быть отделены от других туалетов. Для сотрудников необходимы отдельные туалеты [3−5]. Также регламентируются требования к коммуникативным общешкольным пространствам. В соответствии с Национальными строительными нормами (NBC) 2016 г. минимальная ширина коридоров в чистоте должна составлять 2,0 м, максимальное расстояние между входами в здание 30 м. Расстояние до выхода должно быть минимальным. Количество выходов определяется в зависимости от типа занятости. Национальный строительный кодекс Индии предполагает, что все здания высотой 15 м и выше, а также здания, используемые в качестве учебных, имеющие площадь более 500 м2 на каждом этаже, должны иметь как минимум две лестницы [4]. В состав функциональной структуры индийского школьного здания входят следующие блоки: учебные помещения, административные зоны, вспомогательные зоны и зоны отдыха. Особое внимание при проектировании уделяется учету климатического комфорта (защита от экстремальных погодных условий, противопожарная защита). Каждая проектируемая школа должна использоваться как объект двойного назначения: общественно-досуговый центр или аварийное убежище на время стихийных бедствий. Уровень входа должен быть приподнят относительно уровня земли, чтобы в сезон дождей не происходило подтопления. Также должна быть обеспечена хорошая дренажная система. Школьные здания рекомендуется проектировать в один этаж. Второй этаж может быть построен в будущем, когда потребуется дальнейшее расширение. Здание должно быть обращено на юг, чтобы солнечный свет мог проникать в помещение зимой и не проникать летом [4, 5].
Для классификации школьных зданий в определенной стране используется критерий вместимости. Существует несколько национальных и международных стандартов для определения размера различных помещений в школах на одного обучающегося. Основываясь на этих стандартах, определяют потребность в пространстве для школ различной вместимости (табл. 2). Вместимость школ обычно рассчитывается на основе широкой статистики населения, т. е. процент населения в разных возрастных группах будет определять количество объектов образования каждой категории (детские сады/дошкольные учреждения, начальная школа, средняя школа, старшая средняя школа) [4, 5].
Таблица 2. Нормы площади на одного учащегося в Индии, м2 [1]
Вместимость | Пространство на 1 чел. для начальной школы | Вместимость | Пространство на 1 чел. для средней школы | Вмести мость | Пространство на 1 чел. для старшей школы |
880 | 1.75 (2.36) | 880 | 2.37 (3.20) | 480 | 3.42 (4.61) |
1320 | 1.61 (2.17) | 1320 | 2.09 (2.80) | 720 | 2.87 (3.87) |
1760 | 1.52 (2.00) | 1760 | 1.92 (2.60) | 960 | 2.53 (3.41) |
2200 | 1.42 (1.91) | 2200 | 1.82 (2.45) | 1200 | 2.41 (3.25) |
При соблюдении вышеперечисленных требований школьные здания в Индии имеют схожие черты в планировочной организации: I тип, тип L, T, U, тип E и H (рис. 2).
Рис. 2. Рекомендованные планировочные варианты школ в Индии
Таким образом, основываясь на анализе действующих строительных стандартов и государственных регламентов в Индии, можно заключить, что в стране существует четкая структура образования, общее среднее образование начинается с 6 лет и заканчивается в 17 лет. Школы должны иметь членство в одном из советов CBSE / ICSE, это зависит от функционального состава помещений. Школьные здания могут быть различной формы собственности (государственные, частные, субсидированные). Отсутствуют требования к транспортной доступности объекта (нет регламента по предельно допустимому расстоянию от жилья до школы). Объект образования в Индии должен быть многофункциональным: выполнять функцию общественного центра или убежища при чрезвычайной ситуации. При этом не предполагается наличие дополнительных помещений, а перепрофилирование существующих в неучебное время. Несмотря на некоторую независимость штатов в плане выбора стратегии образования, в системе среднего образования наблюдается единая тенденция при строительстве школьных зданий. Для более подробного анализа учета нормативных требований и регламентируемой функциональной структуры были рассмотрены наиболее информативные примеры школьных зданий в Индии.
Школа в Калькутте общей площадью 15000 м2 построена в 2015 г., частной формы собственности, входит в совет ICSE (ученики получают кембриджский аттестат по окончанию). Состоит из двух учебных корпусов (младшая и средняя школа). Каждый блок имеет 6 этажей. Классные комнаты, лаборатории и другие помещения сгруппированы вокруг внутренних дворов. Структура школа относится к типу I, блоки располагаются под небольшим углом лицом друг к другу и разделены активной игровой зоной. На территории школы есть бассейн. Фасад состоит из 488 панелей армированного волокном пластика (FRP) размером 3,2 х 3,2 м, которые окаймляют каждый из двух учебных блоков. Было разработано 13 различных панелей с комбинацией маленьких и больших букв алфавита, цифр и символов. Они были размещены в различных направлениях для достижения рандомного эффекта на фасаде. Таким образом, проектировщикам удалось добиться дополнительной защиты от солнечной радиации. Внутренний двор младших классов дополнительно спроектирован для размещения детской площадки (игровой площадки), а внутренний двор для старшей школы разделяет зону входа и зал для семинаров (рис. 3). Здание школы используется как общественный центр во внеучебное время [6].
Рис. 3. Школа в районе Ньютаун, Калькутта, Индия [6]
Следующим рассматриваемым объектом является школа общей площадью 6200 м2, расположенная в г. Пуне, штат Махарадже. Этот школьный кампус для разных образовательных ступеней (начальной и средней) включает блок общежития и учебные помещения. Расположен на холмистой местности в виде отдельных корпусов, соединенных пешеходными связями. Этот проект представляет собой школу-интернат с совместным обучением по учебной программе CBSE, в которой обучается 240 учащихся в год (т. е. несколько меньше, чем средняя наполняемость индийской школы без проживания). Жилой комплекс состоит из 10 общежитий, 5 квартир-студий для учителей, кабинета директора и помещения студенческого центра. Учебный кластер состоит из 14 учебных аудиторий, 3 лабораторий, 2 учительских и 2 туалетных блоков. Предусмотрен центр общественного питания со столовой и соответствующими помещениями для обслуживания. В объемно-планировочном решении кампус состоит из одно-двухэтажных корпусов (одноэтажные корпуса – это служебные помещения, двухэтажные – учебные и жилые). В этом проекте применены принципы пассивной зеленой архитектуры. Здания расположены с учетом перепада рельефа, имеют небольшой объем и разные отметки до верха выступающих конструкций, тем самым создается естественное затенение (рис. 4). Толстые двойные стены создают эффект природного кондиционирования. Световые люки в крыше позволяют максимально использовать полезное дневное освещение [7].
Рис. 4. Школьный кампус в г. Пуна, штат Махарадже, Индия [7]
В Объемно-планировочное решение школы в г. Ахмедабад в штате Гуджарад представлено в типе L. Площадь участка 28704 м2. В структуре здания присутствуют административные функции, учебные помещения для начальной, общей средней и старшей образовательной степени. В каждом классе 40 человек, что обеспечивает вместимость 1200 учеников. Школа имеет базовую вспомогательную инфраструктуру, такую как лаборатории, компьютерный центр, столовая, актовый зал и т. д. Ориентация встроенных форм фасадного решения с большими отверстиями, обращенными в северном направлении, исключает прямое воздействие резкого солнечного света и обеспечивает достаточное количество непрямого естественного света и перекрестную вентиляцию, что является хорошим приемом учета чрезмерного климатического воздействия на внутреннюю среду здания [8]. Водоем, расположенный с подветренной стороны, обеспечивает температурный буфер и подавляет перегрев ограждающей конструкции (рис. 5).
Рис. 5. Школа в г. Ахмедабад в штате Гуджарад, Индия [8]
Школа Махариши Видья Мандир − это школьное здание CBSE в Периамете, Ченнаи. Школа рассчитана примерно на 2400 детей, построена в 2019 г. Участок строительства расположен в Периамете, в окружении многоквартирных жилых домов, ветеринарного колледжа, коммерческих магазинов и стадиона имени Джавахарлала Неру. Форма школьного здания − тип E. Большая часть участка выходит на восток и запад. Преобладающее направление ветра юго-восточное. Площадь здания была предусмотрена с учетом преобладающего направления ветра. Функциональная структура объекта состоит из жилого блока, помещений детского сада и основной средней школы (рис. 6). Окна учебных классов сориентированы на север и юг. Все классы освещены естественным светом. Для снижения шума из коридора создана буферная зона шириной 750 мм, которая использовалась для хранения книг и школьных сумок. Пространство над буфером оснащено окнами, что обеспечивает перекрестную вентиляцию помещения [9].
Рис. 6. Школа Махариши Видья Мандир, Периамете, Индия [9]
На основе анализа наиболее информативных примеров современных школ в Индии можно сделать вывод о том, что развитой функциональной структурой обладают объекты с проживанием (школы-интернаты или кампусы), в каждом объекте учтены климатические особенности региона строительства. При визуальном анализе возможно установить тип школьного здания, рекомендованный действующими строительными нормами. Вместимость объектов различна и напрямую зависит от плотности окружающей застройки. В объектах вместимостью 1200 человек комбинируются учебные помещения для различных образовательных ступеней, но при этом помещения столовой, универсального зала не дублируются.
Изменения в образовании напрямую связаны с изменением внешних средовых факторов. Пандемия COVID-19, вызванная распространением коронавируса SARS-CoV-2, стала основным катализатором, показавшим неравномерность охвата средним образованием детей в Индии. Этот аспект стал одной из тем на Всемирном Экономическом Форуме 2022 года. Инициатива «Образование 4.0 Индия» направлена на использование технологий Четвертой промышленной революции для улучшения обучения и уменьшения неравенства в Индии и во всем мире [10−13].
Цифровое обучение может эффективно решить эти проблемы и гарантировать получение образования для каждого. С этой целью в результате сотрудничества экспертов Всемирного экономического форума, Детского фонда ООН (ЮНИСЕФ) и YuWaah (Generation Unlimited India) была разработана инициатива «Образование 4.0 Индия». Основной целью является обеспечение молодежи Индии возможностями участвовать в постоянно развивающемся глобальном рабочем пространстве. Работа над Инициативой стартовала в 2020 г. и объединила более 40 специалистов из разных областей (образование, административные структуры и заинтересованное сообщество), которые работали по четырём направлением на всех этапах образования в Индии (от детского сада до двенадцатого класса): улучшение базовой грамотности, повышение квалификации учителей, школьная профориентация, цифровизация образовательного пространства.
Для улучшения четырех основных направлений проработана программа «Learning and Education (KINDLE)», подразумевающая использование цифровых и сопутствующих им технологий. Внедрение в образовательный процесс языковой практики, пересказа, интерактивного контента, флип-книг позволит улучшить базовые образовательные навыки не только детей, но и их родителей. Второе направление − повышение квалификации − будет развиваться путем улучшения качества подготовки учителей, укрепления мотивации к профессиональному развитию, а также вовлечения к разработке образовательного контента. Третье приоритетное направление − школьная профориентация − фокусируется на том, чтобы быстро подготовить студентов к работе по востребованным направлениям. Почти 85 % индийских школ еще не внедрили профессиональные курсы в рамках своей учебной программы. В рассматриваемой программе предполагается внедрение цифровых и гибридных моделей подобных курсов. Разработчиками инициативы был рассмотрен современный уровень школьного образования в Индии. По данным National Achievement Survey, в 2021 г. средний уровень освоения образовательных программ в 3 классе составляет 59 %, в 5 классе − 49 %, а в 10 классе − только 36 %. Разница в уровне подготовке является существенной в государственных и частных школах, а также в сельских. Эти различия только увеличились в результате пандемии, имея особое влияние на детей из социально не защищенных слоев индийского населения. По данным Всемирного национального банка, ЮНЕСКО, в результате закрытия школ на время пандемии 286 млн детей в мире от 3 до 18 лет были лишены привычной модели получения знаний, что в будущем может привести к уменьшению оплаты труда и получению выручки на 14 % от сегодняшней величины мирового ВВП [13−15]. Одним из экономически выгодных способов компенсации пробелов в знаниях является создание качественного цифрового образовательного контента. Цифровизация образования позволит улучшить уровень приобретения навыков школьников XXI в. К таким навыкам в образовании относятся: критическое мышление, исследовательская деятельность, публичные выступления, работа в команде, цифровая грамотность, гражданская грамотность, предприимчивость, глобальное сознание, понимание окружающей среды, научное мышление и грамотность в вопросах здорового образа жизни [14]. Для Индии в будущем будут разработаны единые образовательные платформы, схожие с уже существующими платформами в России, а также будут осуществлены работы по доступности беспроводной сети в максимальное количество регионов Индии. Пересматриваются варианты наполняемости классов в вопросе обеспечения безопасного расстояния между учащимися.
Их вышесказанного можно заключить, что в Индии наблюдается рост уровня общего среднего образования. Оно становится доступным все большему количеству детей, но неоднородность в уровне освоения и преподавания сохраняется. Регламентирующие документы носят рекомендательный характер, по этой причине существует большая разница между государственными школами в городах и сельских населенных пунктах, и еще большее отставание государственных школ от частных. Хотя касты и были официально отменены, в Индии сохраняются школы частной формы собственности для определенных каст, а также в некоторых школах продолжается раздельное обучение для мальчиков и девочек. В связи с достаточно свободным регулированием образовательной деятельности в отдельных штатах наблюдается неравномерное наполнение и оснащение школ одинаковой формы собственности. В некоторых школах классы переполнены и количество учеников достигает 45 человек.
В результате изучения материала по организации и реализации среднего образования в Индии можно сделать вывод о том, что архитектурная типология объектов развивается, в современных примерах присутствуют грамотные решения учета климатических факторов. Функциональная структура здания не перенасыщена, а включает необходимые помещения для реализации учебного процесса. Планировочная структура адаптирована под внешние факторы, обладает гибкостью за счет каркасной системы. При строительстве зданий учтены принципы энергосбережения (использование дождевой воды, аэрация основных учебных помещений). Также следует отметить, что в Индии отсутствуют школьные здания, построенные по проектам повторного применения, наличие которых могло способствовать развитию системы государственных школ, реализующих среднее образование для всех слоев населения.
About the authors
Anna A. Kuznetsova
Samara State Technical University
Author for correspondence.
Email: amore_86@mail.ru
ORCID iD: 0000-0002-2562-6531
PhD in Architecture, Associate Professor of the Architecture of Residential and Public Buildings Chair
Russian Federation, 443100, Samara, str. Molodogvardeyskaya, 244References
- Features of the educational system in India. Available at: https://www.gnu.org/education/edu-system-india.en.html (accessed 27 January 2023).
- Design norms for school buildings in India. Available at: https://www.yourarticlelibrary.com/schools/guidelines-for-planning-and-designing-a-school-building/45251 (accessed 27 January 2023).
- Requirements for the cbse-affiliated schools of India. Available at: https://www.cbse.gov.in/cbsenew/infra.html (accessed 27 January 2023).
- Private schools in India. Design features. Available at: https://kvsangathan.nic.in/about-kvs/mission (accessed 27 January 2023).
- Kuznetsova A.A., Zhdanova I.V., Voronina I.I. Architecture of the 20th century as a builder of society. Izvestija Samarskogo nauchnogo centra Rossijskoj akademii nauk. Social’nye, gumanitarnye, mediko-biologicheskie nauki [News of the Samara Scientific Center of the Russian Academy of Sciences. Social, humanities, biomedical sciences], 2020, vol. 22, no. 72, pp. 72−77. (in Russian)
- A school in Newtown district, Kolkata, India. Available at: https://www.archdaily.com/769463/the-newtown-school-abin-design-studio (accessed 27 January 2023).
- School campus in Pune, Maharaj, India. Available at: https://www.archdaily.com/290677/the-heritage-school-madhav-joshi-and-associates (accessed 27 January 2023).
- School in Ahmedabad in Gujarad, India. Available at: https://www.archdaily.com/241655/adani-vidyamandir-apurva-amin-architects (accessed 27 January 2023).
- Maharishi Vidya Mandir School, Periamete, India. Available at: https://www.archdaily.com/990914/maharishi-vidya-mandir-school-ksm-architecture (accessed 27 January 2023).
- Kuznetsova A.A., Zhdanova I.V., Uvarova P.O. On the issue of preschool educational organizations for children with disabilities. Izvestija Samarskogo nauchnogo centra Rossijskoj akademii nauk. Social’nye, gumanitarnye, mediko-biologicheskie nauki [News of the Samara Scientific Center of the Russian Academy of Sciences. Social, humanities, life sciences], 2020, vol. 22, no. 72, pp. 27−32. (in Russian)
- Kuznetsova A.A., Zhdanova I.V., Malysheva E.V. Formation of aesthetically comfortable environment of educational organizations. Izvestija Samarskogo nauchnogo centra Rossijskoj akademii nauk. Social’nye, gumanitarnye, mediko-biologicheskie nauki [News of the Samara Scientific Center of the Russian Academy of Sciences. Social, humanities, biomedical sciences], 2018, vol. 20, no. 2, pp. 81−88. (in Russian)
- On increasing the role of physical culture and sports in the formation of a healthy lifestyle of Russians. Available at: http://kremlin.ru/events/president/transcripts/21920 (accessed 10 October 2022).
- Инициатива 4.0. Индия. Available at: https://www.weforum.org/reports (accessed 27 January 2023).
- Kuznetsova A.A., Generalova E.M., Potienko N.D. Functional design of lekotek centers. IOP Conference Series: Earth and Environmental Science. International Science and Technology Conference “Earth Science”, ISTC EarthScience 2022 − Chapter 4. 2022. Р. 052010.
- Vavilova T.Ya., Potienko N.D., Zhdanova I.V. On modernization of capital construction projects in the context of sustainable development of social sphere. Procedia engineering. 2016. Т. 153. Р. 938–943.
Supplementary files







