Разработка и обоснование технологии сорбционной доочистки производственных сточных вод
- Авторы: Панфилова О.Н.1, Степанов С.В.1
-
Учреждения:
- Самарский государственный технический университет
- Выпуск: Том 13, № 1 (2023)
- Страницы: 30-36
- Раздел: ВОДОСНАБЖЕНИЕ, КАНАЛИЗАЦИЯ, СТРОИТЕЛЬНЫЕ СИСТЕМЫ ОХРАНЫ ВОДНЫХ РЕСУРСОВ
- URL: https://bakhtiniada.ru/2542-0151/article/view/143172
- DOI: https://doi.org/10.17673/Vestnik.2023.01.04
- ID: 143172
Цитировать
Полный текст
Аннотация
Разработана технология производства сорбентов на основе глин, приведены расчетные параметры процесса, принципиальная схема и методика расчета процесса сорбционной доочистки сточных вод на примере гальванического производства, проведено технико-экономическое сравнение вариантов строительства сооружений очистки сточных вод гальванического производства.
Ключевые слова
Полный текст
В настоящее время одной из наиболее сложных задач в области доочистки сточных вод является достижение требуемых концентраций ионов тяжелых металлов (далее ИТМ), установленных, как правило, на уровне предельно допустимых концентраций (ПДК) водных объектов рыбохозяйственного значения. Концентрации ИТМ в сточных водах после основного этапа очистки составляют доли мг/л, но тем не менее превышают нормы во много раз, нанося урон окружающей среде. Ранее опубликованные авторами результаты исследований доказали, что природные материалы, такие как монтмориллонит, каолинит, торф, доломит, обладают селективностью по отношению к ИТМ при сорбции из водных растворов [1−3]. Экспериментально было подобрано массовое соотношение этих компонентов 1:1:1:0,1, обладающее наилучшими сорбционными свойствами для доочистки сточных вод от ионов меди, железа, марганца, цинка и свинца.
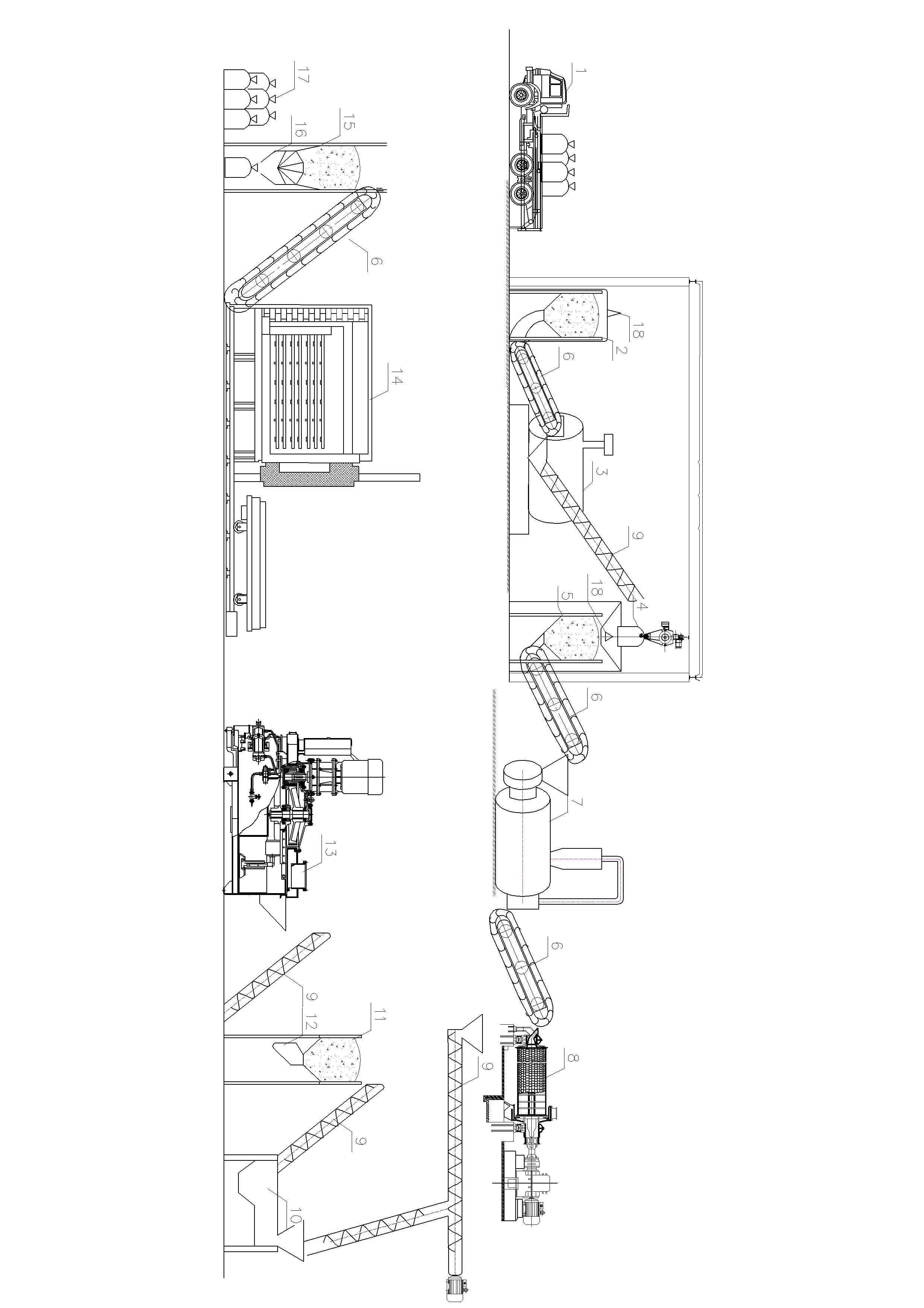
Для осуществления технологии доочистки сточных вод с применением новых сорбентов на основе вышеуказанных природных материалов необходимо разработать технологию по их производству, поскольку данные сорбенты на рынке в настоящее время отсутствуют. С этой целью была разработана производственная линия, которая осуществляет все технологические операции, необходимые для приготовления аналогичных лабораторных образцов. Исследование лабораторных образцов представлены в [4]. Технологическая линия включает прием исходных материалов, просушку, пиролиз торфа, первичный размол, приготовление сырой массы, отжиг в печи при температуре 500 °С, выдержку, постепенное остывание, вторичный размол, фасовку и упаковку. Вид здания и блок-схема процессов производства с расположением основного оборудования, требуемого для приготовления сорбентов, представлены на рис. 1 и 2.
1 – ворота для привоза исходных компонентов; 2 – приёмный бункер торфа; 3 – установка пиролиза; 4 – кран-балка; 5 – бункеры исходных материалов; 6 – ленточные конвейеры; 7 – барабанная сушилка; 8 − шаровая мельница; 9 – шнековый транспортер; 10 – вибросито; 11 – бункеры размолотых компонентов; 12 – дозаторы весовые; 13 – смеситель принудительного действия; 14 – электропечь с выкатным подом; 15 – бункеры готовой продукции; 16 – узел вторичного размола и упаковки; 17 – склад готовой продукции
1 – привоз исходных компонентов; 2 – приёмный бункер торфа; 3 – установка пиролиза; 4 – кран-балка; 5 – бункеры исходных материалов; 6 – ленточные конвейеры; 7 – барабанная сушилка; 8 – шаровая мельница; 9 – шнековый транспортер; 10 – вибросито; 11 – бункеры размолотых компонентов; 12 – дозаторы весовые; 13 – смеситель принудительного действия; 14 – электропечь с выкатным подом; 15 – бункеры готовой продукции; 16 – узел вторичного размола и упаковки; 17 – склад готовой продукции; 18 – растариватель «Биг-Бэгов»
На основании разработанной схемы был выполнен расчет стоимости производства сорбента модифицированная глина «МГ-8» в ценах II квартала 2021 г. с производительностью участка 2,5 т/сут. Расход электроэнергии был рассчитан исходя из мощности оборудования, продолжительности и количества циклов при работе в одну смену и составил 139,8 кВт·ч/сут. Затраты газа 356 м3/сут определены по его удельному расходу, продолжительности работы и массе нагреваемого сырья.
Фонд оплаты труда рассчитан исходя из работы двух операторов с окладами 30 тыс. руб./мес. с учетом страховых взносов в размере 30 %. Ежегодные затраты на текущий ремонт определены в количестве 1 % от стоимости технологического оборудования. Прочие расходы приняты 6 % от суммы эксплуатационных затрат без учета амортизационных отчислений.
В табл. 1 приведено распределение по статьям затрат для расчетного срока эксплуатации участка по производству сорбентов – 10 лет. При этом выделено три расчетных периода. В первый год необходимо внести первоначальный взнос за оборудование, выполнить его монтаж, внести лизинговые платежи и оплатить все эксплуатационные расходы. Во второй и третий годы наряду с эксплуатационными расходами оплачиваются лизинговые платежи. В последующие 4-10-й годы остаются только эксплуатационные расходы.
Таблица 1. Распределение затрат на изготовление сорбента модифицированная глина «МГ – 8» по годам
Статья затрат | Годовые затраты, руб., без НДС | ||
1-й год | 2-3-й годы | 4-10-й годы | |
Технологическое оборудование, первоначальный взнос | 2 708 430 | - | - |
Бункеры исходных компонентов | 118 000 | - | - |
Монтаж оборудования | 996 457 | - | - |
Лизинговые платежи | 2 341 930 | 2 341 930 | - |
Амортизация оборудования | 973 422 | 973 422 | 973 422 |
Сырье | 544 385 | 544 385 | 544 385 |
Электроэнергия | 124 303 | 124 303 | 124 303 |
Газ | 405 953 | 405 953 | 405 953 |
Фонд оплаты труда | 936 000 | 936 000 | 936 000 |
Аренда помещения | 648 000 | 648 000 | 648 000 |
Текущий ремонт | 97 342 | 97 342 | 97 342 |
Прочие расходы | 165 359 | 165 359 | 165 359 |
Всего затрат | 10 059 581 | 6 236 694 | 3 894 764 |
Цена за сорбент модифицированная глина «МГ – 8» 11785 руб./т рассчитана таким образом, чтобы все инвестиции на создание описанного выше участка производительностью 2,5 т/сут окупились за 5 лет эксплуатации. Суммарная прибыль за 6-10-й годы работы участка составит 16,9 млн. руб.
На основании проведенных исследований для доочистки сточных вод предприятий гальванического производства разработана технология, которая может применяться при отведении очищенных вод в водные объекты и системы централизованной канализации [5]. При расходе сточных вод более 200 м3/сут рекомендуется схема непрерывного действия, при расходе менее 200 м3/сут – периодического действия (рис. 3, а, б).
1 – исходные сточные воды; 2 – усреднитель; 3 – установка приготовления и дозирования раствора щелочи; 4 – реактор-нейтрализатор; 5 – отстойник; 6 – адсорбер-смеситель; 7 – дозатор сорбента; 8 – установка приготовления и дозирования коагулянта; 9 – промежуточный бак; 10 – насос подачи на фильтр; 11 – намывной фильтр; 12 – бак очищенной воды; 13 – бак осадка; 14 – установка механического обезвоживания; 15 – фильтрат установки обезвоживания; 16 – обезвоженный осадок; 17 – установка приготовления и дозирования флокулянта; 18 – бак приготовления намывной суспензии; 19 – бункер для перлита; 20 – секционный дозатор перлита; 21 – насос для намыва перлита; 22 – очищенные сточные воды; 23 – реактор-отстойник; 24 – насос обратной промывки
Для наглядности представленные схемы включают повсеместно применяемые этапы предварительной очистки сточных вод гальванического производства: усреднение, нейтрализацию и отстаивание. Расчет сооружений доочистки сточных вод от ИТМ включает определение расчетного объема адсорбера-смесителя как произведение расчетной продолжительности контакта и усредненного расхода сточных вод. Продолжительность контакта может быть принята при наличии ионов цинка и алюминия с концентрацией выше ПДК – 1,5 часа, в остальных случаях – 1 час.
Ввиду относительно небольших различий в составе сточных вод гальванического производства после нейтрализации до оптимального значения рН, доза сорбента МГ-8 может быть принята 1 г/л, доза смесевого сорбента из немодифицированных материалов – 1,6 г/л с возможным уточнением на основе эксперимента на этапе предпроектных работ (действующее производство) или пусконаладки (вновь проектируемое производство).
Расчетная площадь рабочей поверхности намывного патронного фильтра составляет
(1)
где vнп – расчетная скорость фильтрования, 20-25 м/ч.
Используя значение Fнпр, был подобран типоразмер с ближайшей большей площадью или несколько фильтров с суммарной площадью больше расчетной. Принимается один резервный намывной патронный фильтр.
Суточный расход перлита, кг/сут, составляет
(2)
где Fнп – принятая площадь поверхности патронного фильтра, м2; δп – толщина намываемого слоя перлита, обычно 0,003 м; ρп – плотность перлита, 96,3 кг/м3; T – продолжительность работы станции, ч/сут; τнп – продолжительность фильтроцикла, ч, принимается 4,6 ч для МГ-8 и 2 ч для смесевого сорбента из не модифицированных материалов.
Общее количество осадка по сухому веществу, образующееся на ступенях очистки и доочистки в отстойниках 5 (см. рис.3), может быть определено по формуле, кг/сут:
, (3)
где Сисхi – исходная концентрация i-го металла, г/м3; Cнi – нормируемая концентрация i-го металла, г/м3; Аi – атомная масса i-го металла; МГМi – молекулярная масса гидроксида i-го металла; МГ – молекулярная масса гидроксида алюминия или железа; АМе – атомная масса металла коагулянта; Qсут – максимальный суточный расход, м3/сут ; dp – доза сорбента, кг/м3.
Было выполнено технико-экономическое сравнение нового строительства сооружений доочистки предварительно нейтрализованных и осветленных кислотно-щелочных сточных вод гальванического производства по двум вариантам: 1) сорбция с использованием сорбента модифицированная глина с последующим отделением отработанного сорбента фильтрованием на намывном фильтре; 2) фильтрование на механических и цеолитовых фильтрах. В расчете были приняты расходы: среднесуточный – 217 м3/сут; максимальный суточный – 260 м3/сут. Состав исходной воды, мг/л: кадмий – 0,183, свинец – 0,0721, железо общее – 2,63, цинк – 0,0721, никель – 0,0259, алюминий – 38,7, медь – 0,01, хром общий – 0,122. Поскольку этапы очистки и доочистки сточных вод используют общий узел обезвоживания осадков, при проведении технико-экономического сравнения в обе схемы включены одинаковые сооружения для усреднения и нейтрализации сточных вод раствором щелочи. Во втором варианте приняты механические фильтры марки фильтр осветительный вертикальный ФОВ с песчаной загрузкой и сорбционные фильтры марки ФСУ. Периодичность замены цеолитовой загрузки рассчитана исходя из ее сорбционной емкости. Стоимость оборудования и площади определены по данным заводов-изготовителей. К установке приняты стеклопластиковые подземные усреднители, технологические емкости из углеродистой стали с антикоррозионной обработкой, комплектные установки реагентного хозяйства, здания из легких металлических конструкций. Технико-экономическое сравнение (табл. 2) было выполнено с использованием методики затрат жизненного цикла (англ. Life cycle cost, LCC) [6] за 25 лет эксплуатации.
Таблица 2. Затраты жизненного цикла, руб.
Наименование | Обозначение | Вариант 1 | Вариант 2 |
Капитальные затраты | Ci | 25 629 980 | 33 419 807 |
Стоимость энергии | Се | 5 918 341 | 2 430 911 |
Текущие затраты | Со2 | 41 424 478 | 99 823 928 |
Текущий ремонт | Ст1 | 3 368 626 | 4 443 373 |
Замена оборудования | Ст3 | 7 971 639 | 9 090 087 |
Затраты на охрану окружающей среды | Сenv | 16 112 783 | 10 135 362 |
ИТОГО | LCC | 100 425 848 | 159 343 468 |
Экономический эффект | ΔLCC | 58 917 620 |
Анализ затрат жизненного цикла показал, что в связи с высокими затратами на замену цеолита (63 %) величина LCC больше у второго варианта. Лучшим вариантом, т. е. технологией с меньшим показателем затрат жизненного цикла, оказался первый вариант – с разработанным сорбентом на основе природных материалов. Сумма финансирования по данному варианту с учетом инвестирования на этапе строительства и 25-летней эксплуатации меньше, чем по второму варианту, на 58,9 млн. руб.
Выводы
- Разработана технология производства нового сорбента на основе местных природных материалов и определена его цена, которая составила 11785 руб./т. Стоимость сорбента рассчитана для производительности цеха 2,5 т/сут по готовому продукту и окупаемости инвестиций за 5 лет эксплуатации.
- Разработана методика расчета сооружений доочистки сточных вод от ИТМ с применением предлагаемого сорбента «модифицированная глина».
- Технико-экономическое сравнение сооружений доочистки сточных вод гальванического производства с расходом 260 м3/сут от ИТМ до ПДК водных объектов рыбохозяйственного значения показало, что по затратам жизненного цикла (LCC) за 25 лет эксплуатации сорбционная технология с предлагаемым сорбентом «модифицированная глина» имеет преимущество по сравнению с вариантом доочистки, основанным на применении цеолитовых фильтров, на 58,9 млн. руб.
Об авторах
Ольга Николаевна Панфилова
Самарский государственный технический университет
Email: samoliasgsy@yandex.ru
ORCID iD: 0000-0002-1383-1271
Академия строительства и архитектуры
аспирант кафедры водоснабжения и водоотведения
Россия, 443100, г. Самара, ул. Молодогвардейская, 244Сергей Валериевич Степанов
Самарский государственный технический университет
Автор, ответственный за переписку.
Email: stepanovsv3@yandex.ru
Академия строительства и архитектуры
доктор технических наук, профессор кафедры водоснабжения и водоотведения
Россия, 443100, г. Самара, ул. Молодогвардейская, 244Список литературы
- Stepanov S.V., Strelkov A.K., Panfilova O.N. Removal of heavy metals from wastewater with natural and modified sorbents // Magazine of Civil Engineering. 2022. N 111(3). doi: 10.34910/MCE.111.10.
- Степанов С.В., Панфилова О.Н., Абдугаффарова К.К. Физико-химические свойства нового сорбента на основе глин // Градостроительство и архитектура. 2019. Т. 9. № 1. C. 52−56. doi: 10.17673/Vestnik.2019.01.9.
- Панфилова О.Н. Доочистка городских сточных вод от ионов тяжелых металлов с использованием новых сорбционных материалов // Градостроительство и архитектура. 2020. Т. 10. № 2. C. 22−28. doi: 10.17673/Vestnik.2020.02.4.
- Степанов С.В., Панфилова О.Н. Доочистка сточных вод от ионов тяжелых металлов новым сорбентом на основе модифицированных глин // Водоснабжение и санитарная техника. 2018. № 1. С. 46−50.
- Стрелков А. К., Степанов С. В., Панфилова О. Н., Арбузов А. В. Доочистка сточных вод от тяжелых металлов природными и модифицированными глиносодержащими сорбентами // Водоснабжение и санитарная техника. 2021. № 5. С. 30−37. doi: 10.35776/VST.2021.05.
- Березин С.Е., Пупырев Е.И., Баженов В.И., Самбурский Г.А. Разработка методики расчета стоимости жизненного цикла оборудования, систем и сооружений для водоснабжения и водоотведения // Водоснабжение и санитарная техника. 2018. № 2. С.10−19.
Дополнительные файлы





