УПРАВЛЕНИЕ ДИНАМИЧЕСКИМИ ПАРАМЕТРАМИ ПЛОСКОЙ БАЛОЧНОЙ КОНСТРУКЦИИ ПОСРЕДСТВОМ ВЫБОРА ЗАКРЕПЛЕНИЙ
- Авторы: Кудрявцев И.В.1, Иванов В.А.2, Суходоева Н.В.1, Рабецкая О.И.1,3, Митяев А.Е.1
-
Учреждения:
- Сибирский федеральный университет
- Общество с ограниченной ответственностью “Борус“
- Сибирский государственный университет науки и технологий имени академика М.Ф. Решетнева
- Выпуск: № 3 (2023)
- Страницы: 106-122
- Раздел: Статьи
- URL: https://bakhtiniada.ru/1026-3519/article/view/137523
- DOI: https://doi.org/10.31857/S0572329922600529
- EDN: https://elibrary.ru/JLKONE
- ID: 137523
Цитировать
Полный текст
Аннотация
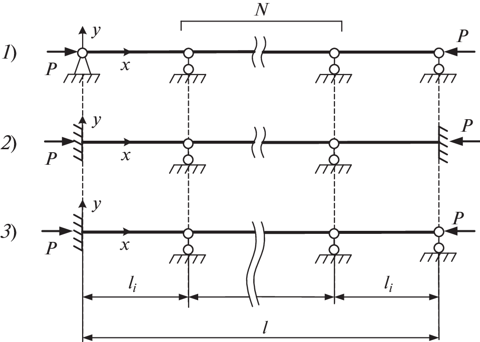
В данной работе предлагается методика обоснованного выбора схемы закрепления, вида опор и их жесткости для плоских балочных конструкций осесимметричного поперечного сечения с целью обеспечения заданных значений первой частоты собственных изгибных колебаний и первой критической нагрузки с учетом действия продольных сил и изменения температуры. Методика основана на известных положениях теории колебаний балок, теории устойчивости по Эйлеру и использует в качестве критерия выбора схемы закрепления коэффициенты опор, которые предварительно нормируются для достижения сопоставимых значений. Выбранная схема обеспечивает заданное значение первой собственной частоты колебаний, величину первой критической температуры или одновременно оба условия работоспособности. Согласно разработанной методике выполнены сравнительные расчеты плоской стержневой конструкции методом конечных элементов, которые показали хорошую сходимость результатов по всем контролируемым параметрам. Предложенный подход может быть использован при проектировании опорного закрепления плоских балочных конструкций различного назначения для обеспечения их динамического поведения.
Ключевые слова
Об авторах
И. В. Кудрявцев
Сибирский федеральный университет
Email: ikudryavcev@sfu-kras.ru
Россия, Красноярск
В. А. Иванов
Общество с ограниченной ответственностью “Борус“
Email: ikudryavcev@sfu-kras.ru
Россия, Красноярск
Н. В. Суходоева
Сибирский федеральный университет
Email: ikudryavcev@sfu-kras.ru
Россия, Красноярск
О. И. Рабецкая
Сибирский федеральный университет; Сибирский государственный университет науки и технологий имени академика М.Ф. Решетнева
Email: ikudryavcev@sfu-kras.ru
Россия, Красноярск; Россия, Красноярск
А. Е. Митяев
Сибирский федеральный университет
Автор, ответственный за переписку.
Email: ikudryavcev@sfu-kras.ru
Россия, Красноярск
Список литературы
- Крейн М.Г. Вибрационная теория многоопорных балок // Вестник инженеров и техников. 1933. № 4. С. 142–145.
- Miles L.W. Vibration of beams on many supports // ASCE J. Eng. Mech. 1956. V. 82. P. 1–9.
- Zhu L., Elisacoff I., Lin Y.K. Free and forced vibrations of periodic multispan beams // Shock Vibr. 1994. V. 1. № 3. P. 217–232.
- Бидерман В.Л. Теория механических колебаний. М.: Высшая школа, 1980. 408 с.
- Доев В.С. Поперечные колебания балок. М.: КНОРУС, 2016. 412 с.
- Banakh L.Y. Vibrations of Mechanical Systems with Regular Structure. Berlin: Springer, 2010. 262 p.
- Benaroya H., Nagurka M., Han S. Mechanical Vibration. Boca Raton, Florida: Taylor and Francis, 2017. 602 p.
- Bottega W.J. Engineering Vibrations. N. Y.: CRC Press, 2006. 750 p.
- Clough R.E. Dynamics of Structures. 3th ed. McGraw-Hill Education, 1995. 752 p.
- Geradin M., Rixen D.J. Mechanical Vibrations: Theory and Application to Structural Dynamics. 3rd Ed. L.: Wiley and Sons, 2015. 617 p.
- Hagedorn P., Dasgupta A. Vibrations and Waves in Continuous Mechanical Systems. John Wiley & Sons, 2007. 388 p.
- Hartog J.P. Mechanical Vibrations. N.Y.: Dover Publications, 1985. 449 p.
- Inman D.J. Engineering Vibration. Prentice Hall, 2014. 720 p.
- Kelly S.G. Advanced Vibration Analysis. Boca Raton: CRC Press, 2006. 650 p.
- Gupta S.G. Natural flexural waves and the normal modes of periodically-supported beams and plates // JSV. 1970. V. 13. № 1. P. 89–101. https://doi.org/10.1016/S0022-460X(70)80082-7
- Zhao Z., Wen S., Li F., Zhang C. Free vibration analysis of multi-span Timoshenko beams using the assumed mode method // Arch. Appl. Mech. 2018. V. 88. № 7. P. 1213–1228. https://doi.org/10.1007/s00419-018-1368-8
- Zhu L., Elishakoff, I., Lin Y.K. Free and forced vibrations of periodic multispan beams // Shock Vib. 1994. V. 1. № 3. P. 217–232. https://doi.org/10.3233/SAV-1994-1302
- Thomsen J.J. Vibrations and Stability: Advanced Theory, Analysis, and Tools. 2nd Ed. N.Y.: Springer, 2003. 404 p.
- Timoshenko S.P., Gere J.M. Theory of Elastic Stability. N. Y.: Courier Corporation, 2009. 541 p.
- Алфутов Н.А., Колесников К.С. Устойчивость движения и равновесия. Москва: МГТУ им. Н.Э. Баумана, 2003. 256 с.
- Thomsen J.J. Vibrations and Stability. Advanced Theory, Analysis, and Tools. Berlin, Heidelberg: Springer Berlin, Heidelberg, 2003. 420 p. https://doi.org/10.1007/978-3-662-10793-5
- Trahair N.S. Buckling analysis design of steel frames // J. Constr. Steel Res. 2009. V. 65. № 7. P. 1459–1463. https://doi.org/10.1016/j.jcsr.2009.03.012
- Биргер И.А., Пановко Я.Г. Прочность, устойчивость, колебания. Т. 3. М.: Машиностроение, 1988. 567 с.
- Уманский А.А. Справочник проектировщика. Т. 2. М.: Стройиздат, 1973. 415 с.
- Коренев Б.Г. Справочник по динамике сооружений. М.: Стройиздат, 1972. 511 с.
- Blevins R.D. Formulas for Dynamics, Acoustics and Vibration. L.: John Wiley & Sons, 2016. 464 p.
- Wang C.M., Wang C.Y. Exact Solutions for Buckling of Structural Members. Boca Raton: CRC Press, 2005. 224 p.
- Mityaev A.E., Kudryavtsev I.V., Khomutov M.P., Brungardt M.V., Kolotov A.V. Estimation of the minimum beam length for the static, dynamic, and stability problems // IOP Conf. Ser.: Mater. Sci. Eng. 2021. V. 1155. P. 012101. https://doi.org/10.1088/1757-899X/1155/1/012101
- Galef A.E. Bending frequencies of compressed beams // J. Acoust. Soc. Am. 1968. V. 44. № 2. P. 643. https://doi.org/10.1121/1.1911144
- Bokaian A. Natural frequencies of beams under compressive axial loads // JSV. 1988. V. 126. № 1. P. 49–65. https://doi.org/10.1016/0022-460X(88)90397-5
- Bokaian A. Natural frequencies of beams under tensile axial loads // JSV. 1990. V. 142. № 3. P. 481–498. https://doi.org/10.1016/0022-460X(90)90663-K
- Stephen N.G. Beam vibration under compressive axial load-upper and lower bound approximation // JSV. 1989. V. 131. № 2. P. 345–350. https://doi.org/10.1016/0022-460X(89)90498-7
- Грудев И.Д. Колебания криволинейных стержней. М.: МИК, 2007. 254 с.
- Auciello N.M., De Rosa M.A. Free vibrations of circular arches: a review // JSV. V. 176. № 4. 1994. P. 433–458. https://doi.org/10.1006/jsvi.1994.1388
- Chidamparam P., Leissa A. W. Vibrations of planar curved beams, rings, and arches // ASME. Appl. Mech. Rev. 1993. V. 46. № 9. P. 467–483. https://doi.org/10.1115/1.3120374
- Markuš Š., Tibor N. Vibration of Curved Beams // Shock Vibr. Dig. 1981. V. 13. P. 3–14.
- West H.H., Mafi M. Eigenvalues for beam-columns on elastic supports // J Struct Eng (US). 1984. V. 2110. № 6. P. 1305–1320. https://doi.org/10.1061/(ASCE)0733-9445(1984)110:6(1305)
- Lin Y.K. Free Vibration of a continuous beam on elastic supports // IJMS. 1962. V. 4. P. 409–423. https://doi.org/10.1016/S0020-7403(62)80027-7
- Naguleswaran S. Transverse vibration of an Euler-Bernoulli uniform beam on up to five resilient supports including ends // JSV. 2003. V. 261. № 2. P. 372–384. https://doi.org/10.1016/S0022-460X(02)01238-5
- Lin H., Chang S.C. Free vibration analysis of multi-span beams with intermediate flexible constraints // JSV. 2005. V. 281. № 1–2. P. 155–169. https://doi.org/10.1016/j.jsv.2004.01.010
- Maurizi M.J., Bambill D.V., Bellés P.M., De Rosa M.A., Grossi R.O., Marcelo A.C., Zannier L. Free vibrations of Bernoulli-Euler beams with intermediate elastic support: a concise thematic recension // JSV. 2005. V. 281. № 3–5. P. 1238–1239. https://doi.org/10.1016/j.jsv.2004.06.014
- Luo J., Zhu S., Zhai W. Exact closed-form solution for free vibration of Euler-Bernoulli and Timoshenko beams with intermediate elastic supports // IJMS. 2022. V. 213. P. 106842. https://doi.org/10.1016/j.ijmecsci.2021.106842
- Chonan S., Sasaki M. Vibration and stability of elastically supported multi-span beams under conservative and non-conservative loads // JSV. 1985. V. 99. № 4. P. 545–556. https://doi.org/10.1016/0022-460X(85)90539-5
- Кудрявцев И.В., Рабецкая О.И., Митяев А.Е. Аппроксимация значений коэффициентов опор балки при колебаниях и потери устойчивости // Сибирский аэрокосмический журнал. 2022. № 3. С. 461–474. https://doi.org/10.31772/2712-8970-2022-23-3-461-474
- Дрейпер Н., Смит Г. Прикладной регрессионный анализ. М.: Вильямс, 2016. 912 с.
- Несмеев Ю.А. Об одном подходе к решению алгебраических уравнений 3-й и 4-й степеней // Вестник ТГУ. Математика и механика. 2011. № 1 (13). С. 26–30.
- Несмеев Ю.А. Развитие одного подхода к решению алгебраического уравнения 4-й степени // Вестник ТГУ. Математика и механика. 2013. № 4 (24). С. 29–38.
- Кудрявцев И.В. Обеспечение динамического состояния прямолинейных волноводных трактов при нагреве с помощью расстановки опор // Вестник МАИ. 2021. № 4 (28). С. 76–89. https://doi.org/10.34759/vst-2021-4-92-105
Дополнительные файлы









