ESTATES OF THE MOSCOW NOBILITY OF THE 14th–15th CENTURIES IN THE PODOL (LOWER AREA) OF THE MOSCOW KREMLIN
- Авторлар: Panchenko K.I.1, Makarov N.A.1, Karpukhin A.A.1, Koval V.Y.1
-
Мекемелер:
- Institute of Archaeology RAS
- Шығарылым: № 2 (2023)
- Беттер: 64-80
- Бөлім: ARTICLES
- URL: https://bakhtiniada.ru/0869-6063/article/view/138894
- DOI: https://doi.org/10.31857/S0869606323020150
- EDN: https://elibrary.ru/RGLILY
- ID: 138894
Дәйексөз келтіру
Толық мәтін
Аннотация
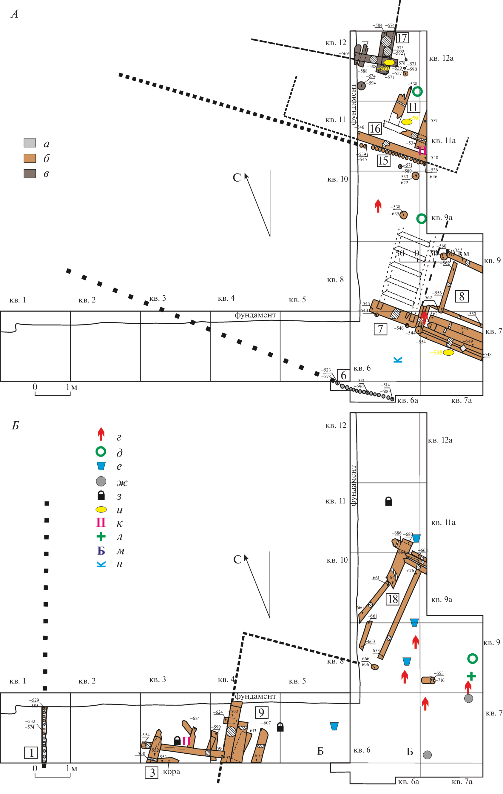
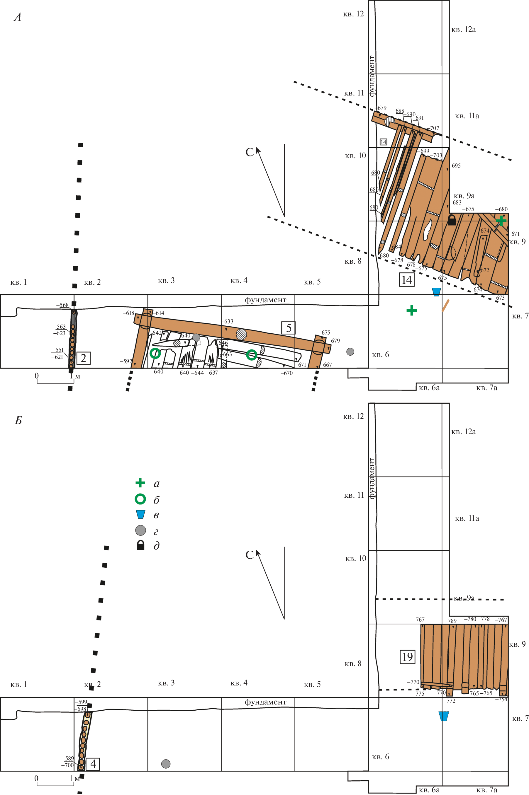
The article provides a preliminary general description of the results of archaeological studies in wet cultural layers in the Tainitsky Garden of the Moscow Kremlin in 2020. The materials collected during the excavations are of exceptional interest for studying the stratigraphy and chronology of cultural deposits in Podol (lower) area and provide a rare opportunity (for the case of the Kremlin) of dating individual structures dendrochronologically. Moreover, the material adds considerable new evidence on the culture of Moscow and the social image of the owners of the Kremlin estates of the 14th–15th centuries AD. The construction in the investigated section of the Podol area since the middle of the 14th century AD was dense and the size of the estates is unknown. The inventory of found artefacts of the period under consideration contains both everyday household objects common for urban use and items associated with a prestigious lifestyle and military activities. Estates of the middle – second half of the 14th century AD can be considered as part of the Kremlin households of Timofey Vasilyevich Velyaminov or his closest relatives.
Негізгі сөздер
Авторлар туралы
Konstantin Panchenko
Institute of Archaeology RAS
Хат алмасуға жауапты Автор.
Email: pakoi@mail.ru
Russia, Moscow
Nikolay Makarov
Institute of Archaeology RAS
Хат алмасуға жауапты Автор.
Email: nmakarov10@yandex.ru
Russia, Moscow
Alexey Karpukhin
Institute of Archaeology RAS
Хат алмасуға жауапты Автор.
Email: karpukhin.a@rambler.ru
Russia, Moscow
Vladimir Koval
Institute of Archaeology RAS
Хат алмасуға жауапты Автор.
Email: kovaloka@mail.ru
Russia, Moscow
Әдебиет тізімі
- Andreev S.I., 2018. The settlement of Ekaterinovka 3: on the southeastern border of Ryazan Principality. Arkheologiya Podmoskov’ya: materialy nauchnogo seminara [Archaeology of Moscow region: Proceedings of a scientific seminar], 14. Moscow: Institut arkheologii Rossiyskoy akademii nauk, pp. 209–235. (In Russ.)
- Astashova N.I., Petrova L.A., Saracheva T.G., 2013. Kresty-enkolpiony iz sobraniya Gosudarstvennogo istoricheskogo muzeya [Reliquary crosses from the collection of the State Historical Museum]. Moscow: RIP-Kholding. 320 p.
- Dubrovin G.A., Koval’ V.Yu., 2014. Estate structures of excavation site 1 in the Tainitsky Garden of the Moscow Kremlin (preliminary publication). Arkheologiya Podmoskov’ya: materialy nauchnogo seminara [Archaeology of Moscow region: Proceedings of a scientific seminar], 10. Moscow: Institut arkheologii Rossiyskoy akademii nauk, pp. 94–110. (In Russ.)
- Ferebov A.N., 2018. Grounds for dating glass bracelets found on the territory of the Moscow Kremlin. Arkheologiya Podmoskov’ya: materialy nauchnogo seminara [Archaeology of Moscow region: Proceedings of a scientific seminar], 14. Moscow: Institut arkheologii Rossiyskoy akademii nauk, pp. 189–200. (In Russ.)
- Karpukhin A.A., Solov’eva L.N., 2017. Some results of dendrochronological analysis of wood samples from excavation site 1 in the Tainitsky Garden of the Moscow Kremlin. Analiticheskie issledovaniya laboratorii estestvennonauchnykh metodov [Analytical research of the Laboratory of Science Methods], 4. Moscow: Institut arkheologii Rossiyskoy akademii nauk, pp. 10-16. (In Russ.)
- Khanenko B.I., Khanenko V.N., 1899. Drevnosti russkie. Kresty i obrazki [Antiquities of Rus. Crosses and icon pendants], 1. Kiev: Tipografiya S.V. Kul’zhenko. 33 p.
- Kirpichnikov A.N., 1971. Drevnerusskoe oruzhie [Weapons of Rus], 3. Dospekh, kompleks boevykh sredstv IX–XIII vv. [Armor, a set of combat equipment of the 9th–13th centuries AD]. Leningrad: Nauka. 126 p. (Arkheologiya SSSR. Svod arkheologicheskikh istochnikov, E1-36).
- Kolchin B.A., 1963. Dendrochronology of the structures in the Nerevsky excavation site. Trudy Novgorodskoy arkheologicheskoy ekspeditsii [Proceedings of the Novgorod archaeological expedition], 4. Zhilishcha drevnego Novgoroda [Dwelling structures of old Novgorod]. Moscow: Nauka. 296 p. (Materialy i issledovaniya po arkheologii SSSR, 123). (In Russ.)
- Koval V.Yu., 2016. Ceramics from the excavations at Podol (the lower town) of the Moscow Kremlin. Arkheologiya Podmoskov’ya: materialy nauchnogo seminara [Archaeology of Moscow region: Proceedings of a scientific seminar], 12. Moscow: Institut arkheologii Rossiyskoy akademii nauk, pp. 437–475. (In Russ.)
- Kozlova A.V., 2004. Ornaments of a belt, harness and bags of oriental origin from excavations in Veliky Novgorod. Novgorod i Novgorodskaya zemlya. Istoriya i arkheologiya [Novgorod and the Novgorod Land. History and archaeology], 18. Velikiy Novgorod: Novgorodskiy gosudarstvennyy ob"edinennyy muzey-zapovednik, pp. 188–207. (In Russ.)
- Kuchkin V.A., 1995. A signature of Dmitry Donskoy’s fellow-champion. Rodina [Motherland], 2, pp. 23–26. (In Russ.)
- Kuchkin V.A., 1997. A forgotten document of the 14th century AD from a find in 1843. Istoricheskiy arkhiv [Historical archive], 3, pp. 14–20. (In Russ.)
- Makarov N.A., Koval’ V.Yu., Krenke N.A., Panova T.D., Engovatova A.V., 2008. Preliminary results of excavations in the Tainitsky Garden of the Moscow Kremlin. Trudy II (XVIII) Vserossiyskogo arkheologicheskogo s"ezda v Suzdale [Works of the II (XVIII) All-Russian archaeological congress in Suzdal], II. Moscow: Institut arkheologii Rossiyskoy akademii nauk, pp. 464–467. (In Russ.)
- Ovchinnikova B.B., 2021. Styluses from excavations in Novgorod in 2000–2016. Novgorodskie arkheologicheskie chteniya – 4: materialy nauchnoy konferentsii “Arkheologiya Novgoroda. 85 let issledovaniy i otkrytiy” [Novgorod archaeological readings – 4: Proceedings of the scientific conference “Archaeology of Novgorod. 85 years of research and discovery”] (2017). Velikiy Novgorod, pp. 196–217. (In Russ.)
- Panova T.D., 2013. Istoricheskaya i sotsial’naya topografiya Moskovskogo Kremlya v seredine XII – pervoy treti XVI veka [Historical and social topography of the Moscow Kremlin in the middle of the 12th – first third of the 16th century AD]. Moscow: Taus. 408 p.
- Panova T.D., 2016. Excavations in the Tainitsky Garden of the Kremlin and the history of archaeological research at Podol of the Borovitsky Hill in Moscow during the 19th–20th centuries. Kratkie soobshcheniya Instituta arkheologii [Brief Communications of the Institute of Archaeology], 243, pp. 92–106. (In Russ.)
- Polnoe sobranie russkikh letopisey [Complete collection of Russian Chronicles], 20. L’vovskaya letopis' [Lvov chronicle]. St. Petersburg, 1910. 418 p.
- Polnoe sobranie russkikh letopisey [Complete collection of Russian Chronicles], 25. Moskovskiy letopisnyy svod kontsa XV veka [Moscow chronicle collection of the late 15th century AD]. Moscow: Izdatel’stvo AN SSSR, 1949. 464 p.
- Polnoe sobranie russkikh letopisey [Complete collection of Russian Chronicles], 15. Rogozhskiy letopisets. Tverskoy sbornik [Rogozhsky chronicler. Tver collection]. Moscow: Yazyki russkoy kul’tury, 2000. 216, 540 p.
- Rudenko K.A., 2022. Mirrors with images of dragons and phoenixes from the Middle Volga region. Srednevekovye drevnosti Primor’ya [Medieval antiquities of Primorye], 5. Vladivostok, pp. 311–342. (In Russ.)
- Stolyarova E.K., Koval’ V.Yu., 2017. Glass bracelets in the eastern part of the Moscow Kremlin (preliminary results of the 2016 activities). Kratkie soobshcheniy Instituta arkheologii [Brief Communications of the Institute of Archaeology], 249, II, pp. 86–94. (In Russ.)
- Tarabardina O.A., 2011. Modern archaeological research and the problem of verifying the dendrochronological scale of Novgorod. Ezhegodnik Novgorodskogo gosudarstvennogo ob"edinennogo muzeya-zapovednika [Yearbook of the Novgorod State United Museum-Reserve], 2010. Velikiy Novgorod, pp. 53–56. (In Russ.)
- Tarabardina O.A., 2012. Landskrona and Nyenskans: results of dendrochronological studies. Rossiyskiy arkheologicheskiy ezhegodnik [Russian archaeological yearbook], 2. St. Petersburg, pp. 626–635. (In Russ.)
- Zabelin I.E., 1905. Istoriya goroda Moskvy [History of the city of Moscow], 1. Moscow. 688 p.
- Zav’yalov V.I., 2013. Research on the Zhitny excavation site in the Kremlin of Pereyaslavl Ryazansky (2007–2009). Materialy po arkheologii Pereyaslavlya Ryazanskogo [Materials on the archaeology of Pereyaslavl Ryazansky], 2. Ryazan’, pp. 20–69. (In Russ.)
- Zav’yalov V.I., 2020. Knives, grips, sheaths from Pereyaslavl Ryazansky (based on materials from the Zhitny excavation site). Rossiyskaya arkheologiya [Russian archaeology], 1, pp. 157–164. (In Russ.)
Қосымша файлдар










