Design errors during major repairs of apartment buildings
- Авторлар: Chulkov A.A.1, Nedoseko I.V.2
-
Мекемелер:
- Samara State Technical University
- Уфимский государственный нефтяной технический университет
- Шығарылым: Том 13, № 3 (2023)
- Беттер: 29-34
- Бөлім: BUILDING CONSTRUCTIONS, BUILDINGS AND FACILITIES
- URL: https://bakhtiniada.ru/2542-0151/article/view/253338
- DOI: https://doi.org/10.17673/Vestnik.2023.03.04
- ID: 253338
Дәйексөз келтіру
Толық мәтін
Аннотация
The main design errors during the overhaul of the heating system of apartment buildings on the example of a 5-storey building made of expanded clay concrete panels are considered and analyzed. A comparative analysis of the values of the heat transfer resistance of external walls obtained by calculation and based on the results of experimental data is performed. Based on the obtained values of the heat transfer resistance of the exterior walls, the calculation of the heat losses of the building was performed. As a result of the identified shortcomings, the amount of thermal energy that the residents of the surveyed house located on the territory of the city of Samara did not receive was calculated.
Негізгі сөздер
Толық мәтін
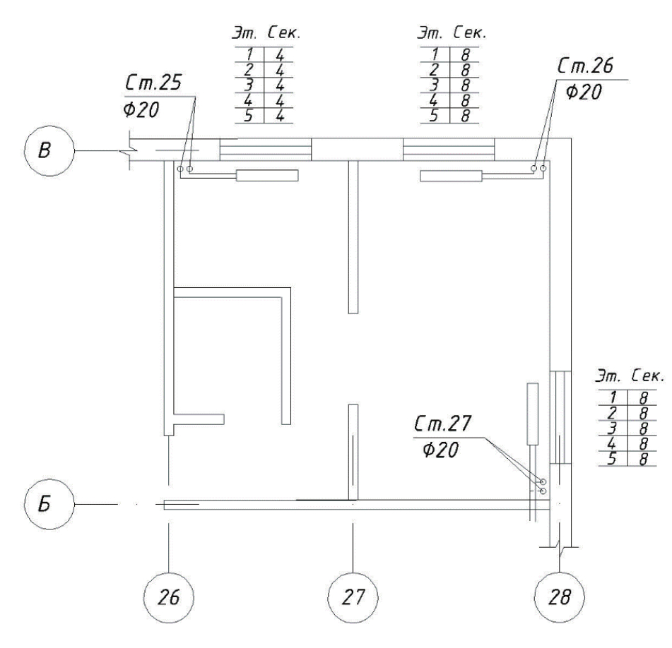
Коллективом авторов выполнено обследование жилой квартиры в пятиэтажном четырехподъездном жилом доме, расположенном в Самаре. Основанием для обследования стала жалоба жильцов квартиры, расположенной на первом этаже, на пониженную температуру воздуха в помещении. Со слов жильцов, данная проблема возникла после проведения капитального ремонта системы отопления, выполненного в 2020 г. Представителями государственной жилищной инспекции совместно с управляющей компанией неоднократно были зафиксированы пониженные температуры воздуха в жилой комнате квартиры, температура воздуха достигала 15 °С, что не соответствует требованиям ГОСТ 30494-2011«Здания жилые и общественные. Параметры микроклимата в помещениях». Жилой дом постройки 60-х гг. прошлого века выполнен из керамзитобетонных панелей толщиной 350 мм, в доме имеется подвал и неотапливаемый чердак. Система отопления жилого дома двухтрубная с разводкой подающей и обратной магистрали по подвалу. Дом запитан к тепловым сетям по зависимой схеме. На вводе в здание установлены отсечные задвижки. Качественное регулирование температуры теплоносителя в системе отопления организовано с помощью элеваторного теплового узла. На момент обследования системы отопления температура наружного воздуха =-4 °С; температура внутреннего воздуха 21,3 °С; влажность воздуха 35,6 %. Параметры микроклимата в помещении в момент обследования соответствует требованиям ГОСТ 30494-2011. В жилой комнате расположено два стояка системы отопления внутренним диаметром Ду=20 мм (стояки №26 и 27 согласно проектной документации). На каждом стояке в жилой комнате установлены биметаллические секционные радиаторы по 8 секций каждый. Фрагмент плана квартиры представлен на рис. 1.
Рис. 1. Фрагмент плана обследуемой квартиры
В результате замера температура на поверхности стояков №26 и 27 и отопительных приборов в разных местах находится в пределах 35–46 °С.
Для более тщательного изучения обусловленной проблемы выполнено обследование системы отопления в подвальных помещениях. Температура теплоносителя на подающем трубопроводе на вводе в здание составила Т11=76 °С, на обратном трубопроводе Т21= 50 °С; давление на подающем трубопроводе Р1=0,58 МПа, на обратном трубопроводе Р2=0,4МПа, что соответствует температурному графику ресурсоснабжающей компании.
После узла смешения (элеваторный узел) температура теплоносителя на подающем трубопроводе в системе отопления составляла Т1=62 °С. Результаты натурного исследования температуры на поверхности стояков №26 и 27 системы отопления и отопительных приборов, установленных в квартире, показали, что температура на их поверхностях изменяется в диапазоне 35–46 °С, а температура теплоносителя на подающем трубопроводе системы отопления составляет 62 °С. Исходя из данного анализа следует, что температура теплоносителя, поступающая в стояки №26 и 27 намного ниже, чем на магистральном трубопроводе в подвале. Это свидетельствует о том, что система отопления не отбалансирована по гидравлическому режиму.
Также выполнен анализ рабочей документации на соответствие принятых решений нормативным требованиям.
При анализе рабочей документации, возникает сомнение в правильности принятых решений в проекте. В документации по каждому стояку на разных этажах установлено одинаковое количество секций отопительных приборов. К примеру, на стояке №27 (проходит в квартирах №1,4,8,12) с первого по пятый этаж установлено по 8 секций. Проектные работы по системе отопления начинаются с расчета тепловых потерь в помещениях. А для этого необходимо выполнить теплотехнический расчет ограждающих конструкций.
Выполним расчет тепловых потерь квартир №1, 4, 12. Для этого сначала выполним теплотехнический расчет строительных ограждающих конструкций.
Приведенное сопротивление теплопередаче определяется по формуле
, (м2·ºС)/Вт, (1)
где r – коэффициент теплотехнической однородности; – коэффициент теплоотдачи внутренней поверхности ограждающей конструкции, Вт/(м2·ºС); – коэффициент теплоотдачи на наружной поверхности ограждающей конструкции, Вт/(м2·ºС);
– термическое сопротивление i˗го слоя многослойной ограждающей конструкции, (м2·ºС)/Вт,
где – толщина i˗го слоя конструкции, м; – коэффициент теплопроводности i-го слоя конструкции, Вт/(м·̊ С).
Состав и характеристики ограждающих конструкций жилого дома представлены в табл. 1.
Таблица 1
Теплофизические характеристики ограждающих конструкций жилого дома
Вид ограждающей конструкции | Толщина δi , м | Коэффициент теплопроводности λi, Вт/м2°С | Плотность ρi, кг/м3 | Сопротивление теплопередаче R0, (м2℃)/Вт |
1. Наружные стены | ||||
Керамзитобетонные плиты | 0,35 | 0,33 | 1000 | 1,09 |
2. Перекрытие над подвалом | ||||
Цементно-песчаная стяжка | 0,03 | 0,76 | 1800 | 0,66 |
Керамзитобетон | 0,05 | 0,29 | 800 | |
Пустотная плита перекрытия | 0,22 | 1,29 | 2500 | |
Оконные блоки с двухкамерными стеклопакетами | - | - | - | 0,55 |
3. Перекрытие над чердаком | ||||
Пустотная плита перекрытия | 0,22 | 1,29 | 2500 | 1,09 |
Керамзитобетон | 0,2 | 0,29 | 800 | |
Цементно-песчаная стяжка | 0,03 | 0,76 | 1800 | |
Выполним расчет тепловых потерь по методике [1] для указанных выше квартир. Результаты расчета представлены в табл. 2.
Таблица 2
Расчет тепловых потерь
№ квартиры |
Этаж | Назначение помещения | Тепловые потери, Вт |
1 | 1 | Жилая комната | 2560 |
1 | 1 | Кухня | 740 |
4 | 2–4 | Жилая комната | 2250 |
4 | 2–4 | Кухня | 600 |
12 | 5 | Жилая комната | 3000 |
12 | 5 | Кухня | 930 |
Исходя из полученных результатов расчета видно, что тепловые потери одинаковых помещений на разных этажах отличаются и, следовательно, одинаковое количество секций отопительных приборов не может быть установлено.
Далее выполним расчет количества секций отопительных приборов в жилой комнате квартиры №1 с некоторыми допущениями: условно принимаем, что радиатор в данной комнате один и подключен к одному стояку, также в расчете не будем учитывать теплоотдачу стояков. Для более полного расчета, с учетом нескольких стояков и радиаторов, необходимо выполнить расчет тепловых потерь соседних квартир и разделить нагрузку пропорционально на разные стояки. Данные расчеты необходимо выполнять при проектировании системы отопления.
Расчет выполнен по методике, изложенной в справочнике проектировщика [1]. Тепловые потери для данного расчета приняты из табл.2. Результаты расчеты сведены в табл. 3
Таблица 3
Результаты расчета секций отопительных приборов
Этаж | Факт | Расчет |
1 | 16 | 20 |
2 | 16 | 17 |
3 | 16 | 17 |
4 | 16 | 17 |
5 | 16 | 24 |
Из табл.3 отчетливо видно, что по результатам расчета количество секций в жилой комнате квартиры №1 по этажам меняется, что подтверждает описанное выше предположение.
Исходя из выполненных расчетов можно сделать вывод, что расчет тепловых потерь и подбор количества секций отопительных приборов в рабочей документации выполнен некорректно.
С помощью измерительных приборов тепловизораFlirThermaCam, измерителя теплового потока ИТП–МГ4.03/5(1) произведено теплотехническое обследование наружных стен в квартире №1.
На рис. 2 и 3 представлены термограммы исследуемых наружных стен.
Рис. 2. Фрагмент стены в осях 27-28/В
Рис. 3. Фрагмент стены в осях Б-В/28
В табл. 4 представлены результаты измерения температуры на внутренней поверхности стены и плотности теплового потока.
Таблица 4
Результаты теплотехнических измерений
Стена в осях 27–28/В | Стена в осях Б–В/28 | ||
тепловой поток q,Вт/м² | температура на внутр.поверхности τ, °С | тепловой поток q,Вт/м² | температура на внутр. поверхности τ, °С |
27,1 | 20,3 | 27,8 | 19,4 |
Из полученных результатов видно, что температуры на внутренней поверхности стены, полученные с помощью тепловизионной съемки, отличаются от значений, полученных с помощью измерителя теплового потока ИТП–МГ4.03/5(1), на величину погрешности измерения и практически совпадают, что свидетельствует о точности полученных результатов.
Далее определим фактическое сопротивление теплопередаче наружных стен в осях 27-28/В и Б-В/28 на основании экспериментальных данных по формуле (СП 50.13330.2012 «Тепловая защита зданий. Актуализированная редакция СНиП 23-02-2003»):
, (м²˚С)/Вт, (2)
где сопротивление теплопередаче на глади наружной стены, (м²˚С)/Вт; температура внутреннего воздуха в помещении, °С; температура наружного воздуха, °С; тепловой поток, Вт/м².
(м²˚С)/Вт – для наружной стены в осях 27-28/В;
(м²˚С)/Вт – для наружной стены в осях Б-В/28.
Определим приведенное сопротивление теплопередаче наружных стен с учетом коэффициента теплотехнической однородности , учитывающего неоднородность конструкции, по формуле
, (м²˚С)/Вт. (3)
Для панельных керамзитобетонных зданий коэффициент теплотехнической однородности принимаем равным [2].
(м²˚С)/Вт – для наружной стены в осях 27-28/В;
(м²˚С)/Вт – для наружной стены в осях Б-В/28.
Значения приведенного сопротивления теплопередаче наружных стен, полученные в результате натурного эксперимента, существенно отличаются от значений, полученных расчетным путем, 0,82–0,84<1,09.
Исходя из полученных результатов видно, что даже при «правильно» выполненном теплотехническом расчете проектная организация некорректно бы сделала расчет тепловых потерь, так как теплотехническое обследование строительных ограждающих конструкций не выполнялось.
Проверим полученное экспериментальным путем приведенное значение теплопередаче наружных стен на соответствие нормативному значению в период строительства жилого дома.
Согласно СНиП II-В.3-58 «Строительная теплотехника» требуемое сопротивление теплопередаче ограждающих конструкций определяют по формуле
м2°С/Вт, (5)
где нормируемый температурный перепад между температурой внутреннего воздуха и температурой на внутренней поверхности наружной стены, °С.
Полученный результат свидетельствует о том, что конструкция наружной стены жилого дома не соответствует нормативному показателю на момент строительства дома: , 0,82<0,92 м2°С/Вт.
Площадь наружных стен жилого дома составляет 1410 м2 (за минусом окон и балконных дверей). Тепловые потери через наружные стены по результатам расчета сопротивления теплопередаче составляют 66740 Вт; на основании значений сопротивления теплопередаче, полученных экспериментальным путем, составляют 88500 Вт. Разница полученных значений составляет 21760 Вт, что в процентном соотношении составляет примерно 25%. Как показали результаты исследований, опубликованные в работах [3–5], утепление наружных стен существенно снижает тепловые потери в помещениях (ГОСТ Р 54852–2011 «Метод тепловизионного контроля качества теплоизоляции ограждающих конструкций»). Рекомендовано выполнить утепление наружных стен.
Причиной пониженной температуры воздуха жилой квартиры по результатам проведенных исследований являются ошибки проектирования, а именно: неправильно выполнен теплотехнический расчет ограждающих конструкций, расчет тепловых потерь, расчет подбора отопительных приборов.
Выводы.1. Фактическое сопротивление теплопередаче наружных стен составило 0,82–0,84 м2°С/Вт, расчетное значение 1,09.
2.Тепловые потери через наружные стены по результатам расчетного значения сопротивления теплопередаче на 25 % меньше значений, полученных при использовании в расчете экспериментальных данных.
3.Перед проектированием системы отопления в жилых многоквартирных домах необходимо выполнять теплотехническое обследование ограждающих конструкций, определять фактическое сопротивление теплопередаче и на основании полученных данных выполнять расчет тепловых потерь и подпор отопительных приборов.
Авторлар туралы
Alexander Chulkov
Samara State Technical University
Email: ch_aleks01@mail.ru
engineer of the center for energy saving in construction
Ресей, 443100, Samara, Molodogvardeyskaya str., 244Igor’ Nedoseko
Уфимский государственный нефтяной технический университет
Хат алмасуға жауапты Автор.
Email: nedoseko1964@mail.ru
doctor of technical sciences, professor of the building structures chair
Ресей, 450080, Ufa, Mendeleevstr., 195Әдебиет тізімі
- Staroverov I.G., Shiller Ju.I. Spravochnikproektirovshhika.Vnutrenniesanitarno-tehnicheskieustrojstva.Chast' 1.Otoplenie[Designer's Handbook.Internal sanitary and technical devices.Part 1.Heating].Moscow, Stroyizdat, 1990. 343 p.
- STO 00044807-001-2006. Teplozashhitnyesvojstvaograzhdajushhihkonstrukcij. Standartorganizacii[STO 00044807-001-2006.Thermal protection properties of enclosing structures.OrganizationStandard].Moscow, ROIS, 2006. 64 p.
- VytchikovYu.S., Belyakov I.G., Chulkov A.A., Shaikhutdinova I.V. Study of heat protection characteristics of the end outer wall of a multi-storey residential building.Nauchnoeobozrenie [Scientific review], 2015, no. 23, pp. 31–35. (in Russian)
- VytchikovYu.S., Belyakov I.G., Nokhrina E.N. Insulation of building facades during the overhaul of the existing housing stock of the Samara region.Gradostroitel'stvoiarhitektura [Urban Planning and Architecture], 2014, Iss. 3(16), pp. 103–110.(inRussian) doi: 10.17673/Vestnik.2014.03.18
- VytchikovYu.S., Belyakov I.G., Belyakova E.A., Slavov S.D. Improving the energy efficiency of reconstructed residential buildings. Stroitel'nyematerialy, oborudovanie, tehnologii XXI veka [Construction materials, equipment, technologies of the XXI century], 2008, no. 1, pp. 62–63. (in Russian)




